GDN Ingatlanhálózat

KAPCSOLAT
Csóka Annamária


+36 30 445

a.csoka@

Az időpont kérés naptár ikonja
IDŐPONTOT KÉREK
A visszahívás kérés telefon ikonja egy azt körbe ölelő nyíllal
VISSZAHÍVÁST KÉREK
Ajánlom egy ismerősömnek ikon
AJÁNLOM EGY ISMERŐSÖMNEK
Facebook megosztás ikon
MEGOSZTÁS

KAPCSOLATFELVÉTEL

Küldés

Az üzenetet sikeresen elküldtük!
Hiba történt!
INGATLAN ADATAI

Ingatlan jellege

családi ház

Belső terület

134 m²

Telek terület

685 m²

Építési állapot

újszerű

Építési mód

- nem meghatározott -

Szobák száma

5 szoba

Épület szintje

1.

Ingatlan állapot

kívül: jó
belül: jó

Fűtés

cirko

Komfort

duplakomfort

Közműállapot

csatorna: bekötve
gáz: bekötve
villany: bekötve
víz: bekötve

Az időpont kérés naptár ikonja
HTML
Az időpont kérés naptár ikonja
PDF
Eladó újszerű ház
Belső azonosító:
391757
Ingatlan azonosító:
35591_gimp

Budapest, XVII. kerület, Rákoscsaba

Irányár

140 M Ft

Szobák

5 szoba

Emelet

Terület

134 m²

Telek terület

685 m²
INGATLAN LEÍRÁSA
BEFEKTETŐK FIGYELEM!!!
HÁROM GENERÁCIÓ EGY HÁZBAN, VAGY HÁROM KÜLÖNÁLLÓ LAKÁS!!!

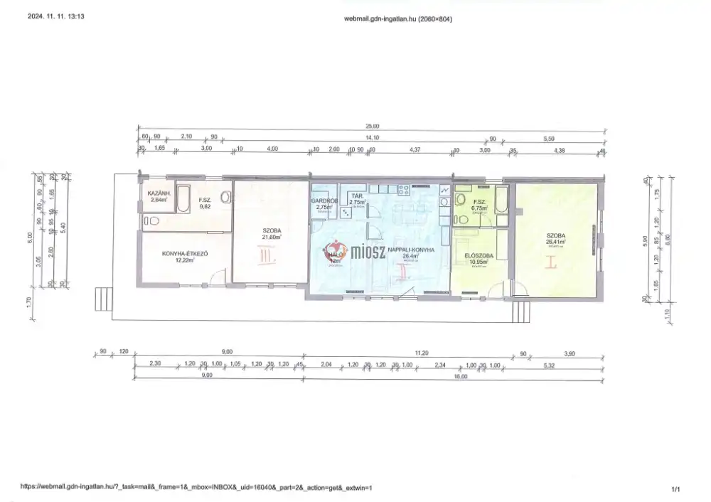
XVII. kerületben, Rákoscsabán, eladó egy 685 m2-es telken fekvő 134 m2-es családi ház. 

A ház 2006-ban épült. Jelenleg egybenyitva van használatban, de minimális átalakítással 3 lakássá alakítható, három külön bejárattal. Mindegyik lakás felett a tetőtér beépíthető.

I. lakás: 44 m2
II. lakás: 44 m2
III. lakás: 46 m2

A ház további jellemzői

- PER- és TEHERMENTES

- KERTVÁROSI KÖRNYEZET

- betonfödém

- fedett terasz (kb. 10 m2)

- DNY-i fekvésű

- fedett felszíni beálló

- kamra

- beépített szekrények

- minden közmű egyedileg mérhető

- külső raktár épület

- gondozott kert (fenyőfák, virágok)

- kis átalakítással 3 generációs házzá alakítható

- 3 db villanyóra

Parkolás: a telken egy fedett autóbeálló található.

Fűtése: cirkó kombi gázkazán.

Közlekedés: kiváló (buszok: 169 E, éjszakai járat: 956) Rákoscsaba vasútállomás autóbusszal 2 megállóra van. Belváros 25 perc alatt elérhető tömegközlekedéssel.

Az M0-ás autóút 5 percnyi távolságra.

Közelben: Auchan Áruház Maglód,
SPAR, bevásárlási lehetőségek, óvoda, iskola, bankok, posta, gyógyszertár stb.

Amennyiben felkeltettem az érdeklődését vagy bármely további kérdése lenne, keressen bizalommal.
Akár hétvégén is!

CSA

INGATLAN ADATAI

Ingatlan jellege
családi ház
Belső terület
134 m²
Telek terület
685 m²
Építési állapot
újszerű
Építési mód
- nem meghatározott -
Szobák száma
5 szoba
Épület szintje
1.
Ingatlan állapot
kívül: jó
belül: jó
Fűtés
cirko
Komfort
duplakomfort
Közműállapot
csatorna: bekötve
gáz: bekötve
villany: bekötve
víz: bekötve
Energetika
TÉRKÉP

Budapest, XVII. kerület, Rákoscsaba

KAPCSOLAT
Csóka Annamária
Csóka Annamária


+36 30 445 1132

a.csoka@gdn-ingatlan.hu

KAPCSOLAT
Csóka Annamária

+36 30 445

a.csoka@

Az időpont kérés naptár ikonja
IDŐPONTOT KÉREK
A visszahívás kérés telefon ikonja egy azt körbe ölelő nyíllal
VISSZAHÍVÁST KÉREK
Ajánlom egy ismerősömnek ikon
AJÁNLOM EGY ISMERŐSÖMNEK
Facebook megosztás ikon
MEGOSZTÁS

KAPCSOLATFELVÉTEL

Küldés

Az üzenetet sikeresen elküldtük!
Hiba történt!
INGATLAN ADATAI

Ingatlan jellege

családi ház

Belső terület

134 m²

Telek terület

685 m²

Építési állapot

újszerű

Építési mód

- nem meghatározott -

Szobák száma

5 szoba

Épület szintje

1.

Ingatlan állapot

kívül: jó
belül: jó

Fűtés

cirko

Komfort

duplakomfort

Közműállapot

csatorna: bekötve
gáz: bekötve
villany: bekötve
víz: bekötve

Energetika

Az időpont kérés naptár ikonja
HTML
Az időpont kérés naptár ikonja
PDF
Budapest, XVII. kerület - Rákoscsaba
Budapest, XVII. kerület - Rákoscsaba
Budapest, XVII. kerület - Rákoscsaba
Budapest, XVII. kerület - Rákoscsaba
Budapest, XVII. kerület - Rákoscsaba
Budapest, XVII. kerület - Rákoscsaba
Budapest, XVII. kerület - Rákoscsaba
Budapest, XVII. kerület - Rákoscsaba
Budapest, XVII. kerület - Rákoscsaba
Budapest, XVII. kerület - Rákoscsaba
Budapest, XVII. kerület - Rákoscsaba
Budapest, XVII. kerület - Rákoscsaba
Budapest, XVII. kerület - Rákoscsaba
Budapest, XVII. kerület - Rákoscsaba
Budapest, XVII. kerület - Rákoscsaba
Budapest, XVII. kerület - Rákoscsaba