GDN Ingatlanhálózat

KAPCSOLAT
Bognár Katalin


+36 70 977

k.bognar@

Az időpont kérés naptár ikonja
IDŐPONTOT KÉREK
A visszahívás kérés telefon ikonja egy azt körbe ölelő nyíllal
VISSZAHÍVÁST KÉREK
Ajánlom egy ismerősömnek ikon
AJÁNLOM EGY ISMERŐSÖMNEK
Facebook megosztás ikon
MEGOSZTÁS

KAPCSOLATFELVÉTEL

Küldés

Az üzenetet sikeresen elküldtük!
Hiba történt!
INGATLAN ADATAI

Ingatlan jellege

családi ház

Belső terület

140 m²

Telek terület

385 m²

Építési állapot

használt

Építési mód

- nem meghatározott -

Szobák száma

4 szoba

Épület szintje

1.

Ingatlan állapot

kívül: jó
belül: jó

Fűtés

egyéb

Komfort

duplakomfort

Közműállapot

csatorna: bekötve
gáz: bekötve
villany: bekötve
víz: bekötve

Az időpont kérés naptár ikonja
HTML
Az időpont kérés naptár ikonja
PDF
Eladó ház
Belső azonosító:
384130
Ingatlan azonosító:
34365_gimp

Budapest, XXII. kerület, Budafok

Irányár

109 M Ft

Szobák

4 szoba

Emelet

Terület

140 m²

Telek terület

385 m²
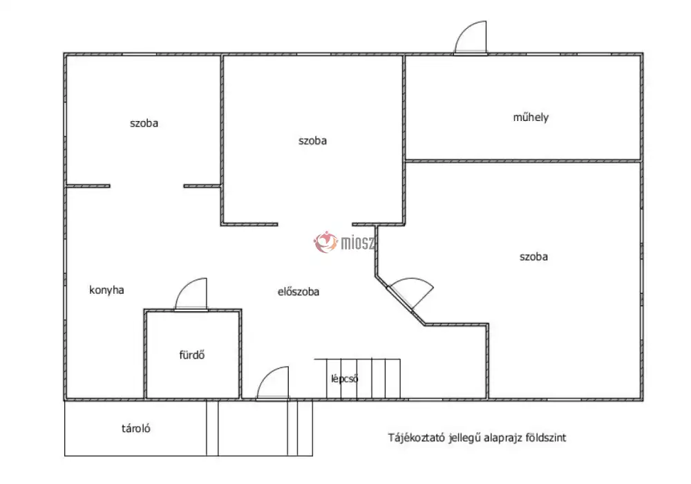
INGATLAN LEÍRÁSA
140 nm-es, kétszintes családi ház eladó Budafok legkedveltebb részén – csend, kert, lehetőség!

Budafok egyik legkedveltebb, csendes utcájában kínálunk megvételre egy két szintes, szigetelt családi házat, amely ideális lehet nagycsaládosoknak, két generáció számára, vagy akár befektetési célra is!

Két különálló lakás egy házban
A ház jelenleg két, önálló lakásként funkcionál: az alsó és felső szint is külön bejárattal rendelkezik, ugyanakkor a már meglévő belső lépcső segítségével könnyedén egybenyitható, így rugalmasan alakítható a tér az új tulajdonos igényei szerint.

Alsó szint - mely jelenleg bérbe van adva:

2 külön nyíló szoba
Kis konyha
Zuhanyzós fürdőszoba
Dolgozó vagy hobby szoba

Felső szint:

Tágas, amerikai konyhás nappali
Hálószoba erkéllyel
Beépített terasz- étkezőnek vagy téli kertnek
Fürdőszoba
Külön WC
Tárolóhelyiség

Műszaki adatok:

Az ingatlan a ’80-as években épült, azóta szigetelt, jól karbantartott

Műanyag nyílászárók
Gázkazános fűtés, radiátorokkal
Villanybojler biztosítja a meleg vizet
A szobákban jó minőségű fa parketta, a többi helyiségben padlólap

Kert és extra lehetőségek:

Szépen gondozott kert termő gyümölcsfákkal
Kétkapus bejárat, akár 4 autó parkolására alkalmas beálló

A ház alatt egy kb. 200 m²-es földbe vájt pince található – akár borospincének, műhelynek, hobbitérnek is ideális!

Az ingatlan tehermentes és rövid határidővel birtokba vehető!

Ez az ingatlan tökéletes választás lehet azoknak, akik nyugodt, zöldövezeti környezetben keresnek rugalmasan alakítható, jó állapotú otthont – kiváló infrastruktúrával és közlekedéssel. Befektetési céllal vásárlók könnyedén bérbe tudják adni, a két szintet akár külön-külön is!

A képek között a lehetséges felújítási látványtervek is megtalálhatóak.

Ne maradjon le róla – hívjon bizalommal a megtekintésért!

INGATLAN ADATAI

Ingatlan jellege
családi ház
Belső terület
140 m²
Telek terület
385 m²
Építési állapot
használt
Építési mód
- nem meghatározott -
Szobák száma
4 szoba
Épület szintje
1.
Ingatlan állapot
kívül: jó
belül: jó
Fűtés
egyéb
Komfort
duplakomfort
Közműállapot
csatorna: bekötve
gáz: bekötve
villany: bekötve
víz: bekötve
Energetika
TÉRKÉP

Budapest, XXII. kerület, Budafok

KAPCSOLAT
Bognár Katalin
Bognár Katalin


+36 70 977 8080

k.bognar@gdn-ingatlan.hu

KAPCSOLAT
Bognár Katalin

+36 70 977

k.bognar@

Az időpont kérés naptár ikonja
IDŐPONTOT KÉREK
A visszahívás kérés telefon ikonja egy azt körbe ölelő nyíllal
VISSZAHÍVÁST KÉREK
Ajánlom egy ismerősömnek ikon
AJÁNLOM EGY ISMERŐSÖMNEK
Facebook megosztás ikon
MEGOSZTÁS

KAPCSOLATFELVÉTEL

Küldés

Az üzenetet sikeresen elküldtük!
Hiba történt!
INGATLAN ADATAI

Ingatlan jellege

családi ház

Belső terület

140 m²

Telek terület

385 m²

Építési állapot

használt

Építési mód

- nem meghatározott -

Szobák száma

4 szoba

Épület szintje

1.

Ingatlan állapot

kívül: jó
belül: jó

Fűtés

egyéb

Komfort

duplakomfort

Közműállapot

csatorna: bekötve
gáz: bekötve
villany: bekötve
víz: bekötve

Energetika

Az időpont kérés naptár ikonja
HTML
Az időpont kérés naptár ikonja
PDF
Budapest, XXII. kerület - Budafok
Budapest, XXII. kerület - Budafok
Budapest, XXII. kerület - Budafok
Budapest, XXII. kerület - Budafok
Budapest, XXII. kerület - Budafok
Budapest, XXII. kerület - Budafok
Budapest, XXII. kerület - Budafok
Budapest, XXII. kerület - Budafok
Budapest, XXII. kerület - Budafok
Budapest, XXII. kerület - Budafok
Budapest, XXII. kerület - Budafok
Budapest, XXII. kerület - Budafok
Budapest, XXII. kerület - Budafok
Budapest, XXII. kerület - Budafok
Budapest, XXII. kerület - Budafok
Budapest, XXII. kerület - Budafok