GDN Ingatlanhálózat

KAPCSOLAT
Göbölyös Judit


+36 70 269

j.gobolyos@

Az időpont kérés naptár ikonja
IDŐPONTOT KÉREK
A visszahívás kérés telefon ikonja egy azt körbe ölelő nyíllal
VISSZAHÍVÁST KÉREK
Ajánlom egy ismerősömnek ikon
AJÁNLOM EGY ISMERŐSÖMNEK
Facebook megosztás ikon
MEGOSZTÁS

KAPCSOLATFELVÉTEL

Küldés

Az üzenetet sikeresen elküldtük!
Hiba történt!
INGATLAN ADATAI

Ingatlan jellege

családi ház

Belső terület

109 m²

Telek terület

1562 m²

Építési állapot

használt

Építési mód

- nem meghatározott -

Szobák száma

3 szoba

Épület szintje

1.

Ingatlan állapot

kívül: jó
belül: jó

Fűtés

gázkonvektor

Komfort

összkomfort

Közműállapot

csatorna: bekötve
gáz: bekötve
villany: bekötve
víz: bekötve

Az időpont kérés naptár ikonja
HTML
Az időpont kérés naptár ikonja
PDF
Eladó ház
Belső azonosító:
392764
Ingatlan azonosító:
35790_gimp

Pest megye, Dunaharaszti, Óváros

Irányár

125 M Ft

Szobák

3 szoba

Emelet

Terület

109 m²

Telek terület

1562 m²
INGATLAN LEÍRÁSA
Eladó önálló családi ház nagy telekkel Dunaharasztiban!

Dunaharaszti frekventált részén az Óvárosban nettó 108,5 nm alapterületű, tégla építésű, önálló családi házat kínálunk megvételre 1562 nm-es telken.
A telek övezeti besorolása: LKe3.
Mérete: 25 x 62 méter.

Az ingatlan több lehetőséget rejt magában, korszerűsítés után kényelmes, élhető otthon lehet nagy telekkel.
Elhelyezkedése miatt vállalkozások számára is kiváló lehetőség
(régen kertészet működött itt).

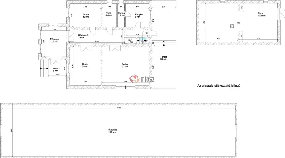
A ház beosztása:
- előszoba 12,5 nm,
- közlekedő 15 nm,
- szoba 12 nm,
- szoba 20 nm,
- szoba 30 nm,
- fürdőszoba 5,5 nm,
- WC 1,0 nm,
- kamra 2,5 nm,
- konyha 9,0 nm,
- padlásfeljáró 1,0 nm,
---------------------------------
összesen: 108,5 nm
+ terasz 33 nm,
+ terasz 5,0 nm,
+ pince 49,5 nm.

A udvarban található még, egy 198 nm-es üvegház, valamint egy tároló.

A telken fúrt kút van.
Minden közmű a házba bekötve.

Az ingatlan elhelyezkedése kiváló, HÉV- megálló a közelben.
Iskola, óvoda, bölcsöde gyalogosan néhány perc alatt elérhető.

Amivel segítjük az Ön ingatlanvásárlását:
- ingyenes hitelügyintézés,
- jogi háttér,
- földhivatali ügyintézés,
- energetikai tanúsítvány,
- a vevő számára az ingatlanközvetítés ingyenes.

Irodánk 30 éves szakmai tapasztalattal áll ügyfelei rendelkezésére!

Várom szíves megkeresését!

INGATLAN ADATAI

Ingatlan jellege
családi ház
Belső terület
109 m²
Telek terület
1562 m²
Építési állapot
használt
Építési mód
- nem meghatározott -
Szobák száma
3 szoba
Épület szintje
1.
Ingatlan állapot
kívül: jó
belül: jó
Fűtés
gázkonvektor
Komfort
összkomfort
Közműállapot
csatorna: bekötve
gáz: bekötve
villany: bekötve
víz: bekötve
Energetika
TÉRKÉP

Pest megye, Dunaharaszti, Óváros

KAPCSOLAT
Göbölyös Judit
Göbölyös Judit


+36 70 269 5029

j.gobolyos@gdn-ingatlan.hu

KAPCSOLAT
Göbölyös Judit

+36 70 269

j.gobolyos@

Az időpont kérés naptár ikonja
IDŐPONTOT KÉREK
A visszahívás kérés telefon ikonja egy azt körbe ölelő nyíllal
VISSZAHÍVÁST KÉREK
Ajánlom egy ismerősömnek ikon
AJÁNLOM EGY ISMERŐSÖMNEK
Facebook megosztás ikon
MEGOSZTÁS

KAPCSOLATFELVÉTEL

Küldés

Az üzenetet sikeresen elküldtük!
Hiba történt!
INGATLAN ADATAI

Ingatlan jellege

családi ház

Belső terület

109 m²

Telek terület

1562 m²

Építési állapot

használt

Építési mód

- nem meghatározott -

Szobák száma

3 szoba

Épület szintje

1.

Ingatlan állapot

kívül: jó
belül: jó

Fűtés

gázkonvektor

Komfort

összkomfort

Közműállapot

csatorna: bekötve
gáz: bekötve
villany: bekötve
víz: bekötve

Energetika

Az időpont kérés naptár ikonja
HTML
Az időpont kérés naptár ikonja
PDF
Pest megye - Dunaharaszti
Pest megye - Dunaharaszti
Pest megye - Dunaharaszti
Pest megye - Dunaharaszti
Pest megye - Dunaharaszti
Pest megye - Dunaharaszti
Pest megye - Dunaharaszti
Pest megye - Dunaharaszti
Pest megye - Dunaharaszti
Pest megye - Dunaharaszti
Pest megye - Dunaharaszti
Pest megye - Dunaharaszti
Pest megye - Dunaharaszti
Pest megye - Dunaharaszti
Pest megye - Dunaharaszti
Pest megye - Dunaharaszti