GDN Ingatlanhálózat

KAPCSOLAT
Suba Sándor


+36 30 556

s.suba@

Az időpont kérés naptár ikonja
IDŐPONTOT KÉREK
A visszahívás kérés telefon ikonja egy azt körbe ölelő nyíllal
VISSZAHÍVÁST KÉREK
Ajánlom egy ismerősömnek ikon
AJÁNLOM EGY ISMERŐSÖMNEK
Facebook megosztás ikon
MEGOSZTÁS

KAPCSOLATFELVÉTEL

Küldés

Az üzenetet sikeresen elküldtük!
Hiba történt!
INGATLAN ADATAI

Ingatlan jellege

családi ház

Belső terület

254 m²

Telek terület

781 m²

Építési állapot

használt

Építési mód

- nem meghatározott -

Szobák száma

6 szoba

Épület szintje

1.

Ingatlan állapot

kívül: jó
belül: jó

Fűtés

villany

Komfort

duplakomfort

Közműállapot

csatorna: bekötve
gáz: bekötve
villany: bekötve
víz: bekötve

Az időpont kérés naptár ikonja
HTML
Az időpont kérés naptár ikonja
PDF
Eladó ház
Belső azonosító:
390870
Ingatlan azonosító:
35495_gimp

Pest megye, Hévízgyörk

Irányár

137.7 M Ft

Szobák

6 szoba

Emelet

Terület

254 m²

Telek terület

781 m²
INGATLAN LEÍRÁSA
Eladó szépen karbantartott villa jellegű ingatlan, kivételes adottságokkal

Megvételre kínálok egy 2000-ben téglából épült, folyamatosan karbantartott és korszerűsített, valódi villa karakterrel rendelkező ingatlant, költözés miatt.

Az épület 2021 óta átfogó megújításon esett át, melynek során a tulajdonos kiemelt figyelmet fordított a gépészetre, a fűtési rendszer korszerűsítésére, festésekre és az elektromos hálózat fejlesztésére.

A fűtés és hűtés 10 darab, modern, wifis klímával megoldott, a melegvízellátást új Ariston villanybojler biztosítja. Az ingatlan 3×16A elektromos betáplálással rendelkezik.

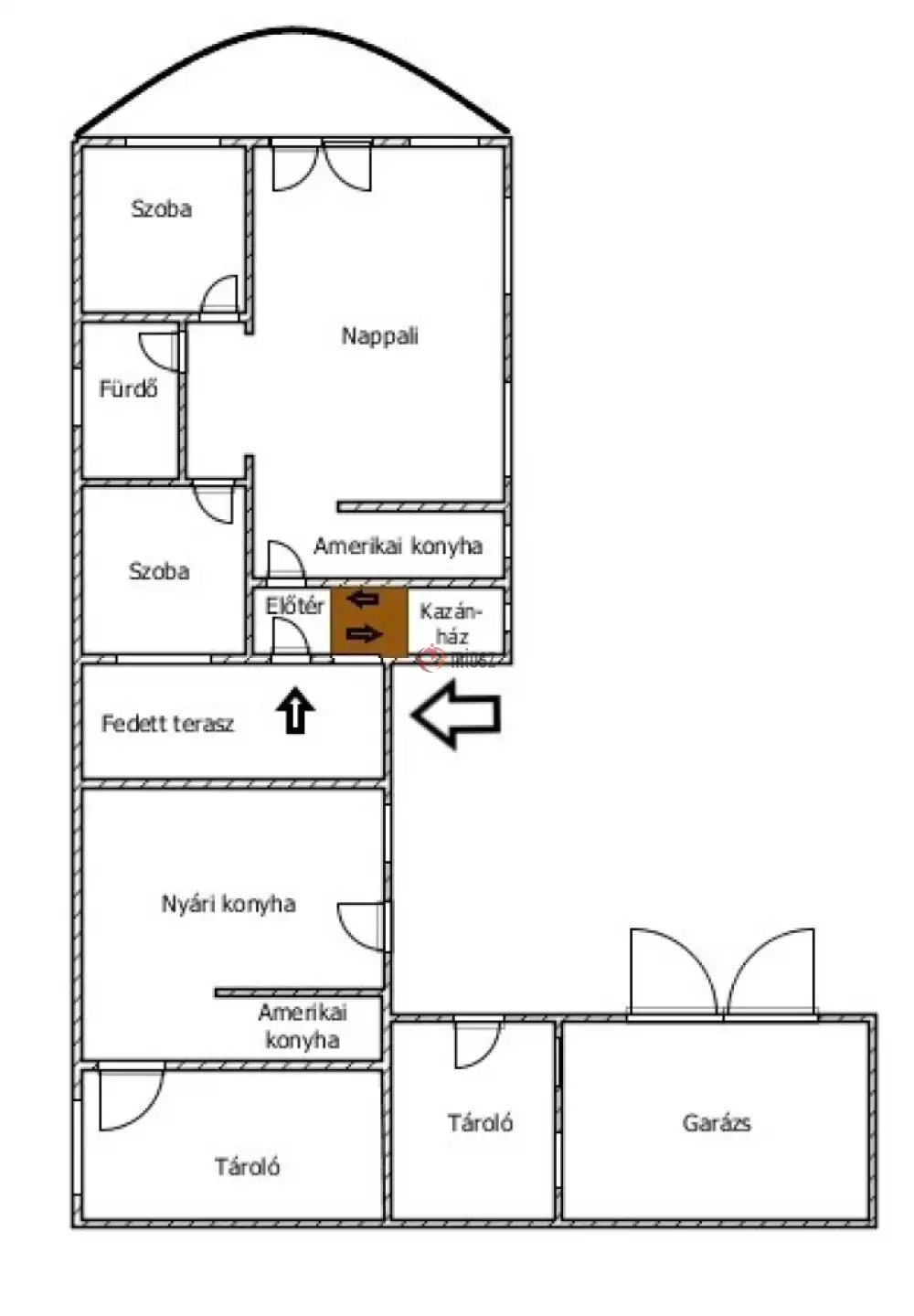
Főépület:

Két szint

Szintenként kb. 127 m², összesen 254 m² lakótér

Alsó szint:

- nagyméretű amerikai konyhás nappali

- hálószoba

- gyerekszoba

- fürdőszoba

- kamra


Felső szint:

- dolgozószobák

- vendégszoba

- gardrób

- külön WC és zuhanyzó

- mozihelyiség motoros vetítővászonnal



Az ingatlan belső és külső tereit eredeti, kézzel kidolgozott gipszstukkók, klasszikus oszlopos megoldások és íves nyílászárók teszik különlegessé, amely valódi villa megjelenést biztosít.

Telek és további épületek:

- 781 m² saját telek

- 85 m²-es különálló hátsó épület (felújítandó, bővíthető)

- 50 m²-es 2 állásos garázs, amelyből további lakótér is leválasztható

Többgenerációs együttélés vagy akár 3 különálló lakóegység kialakítása is lehetséges, adott esetben pedig társasházzá is alakítható!


Az utcafronton kényelmes parkolási lehetőség áll rendelkezésre, akár 4 autó számára is.


INGYENES hitel tanácsadás!
CSOK Ügy intézés!
3% -os OSP hitel ügyintézés!

BANKFÜGGETLEN hitelcentrumunk minden elérhető bank és hitelintézet ajánlatát versenyezteti az Ön kedvéért, ráadásul DÍJMENTESEN.
Önnek nincs más dolga, mint elbeszélgetni munkatársunkkal, aki a hallott információk alapján versenyre hívja a bankokat, hogy Ön hosszú távon is a legjobb konstrukciót kaphassa. A legjobb ajánlatokból végül Ön választhatja ki a nyertest.
Munkatársaink sokéves szakmai tapasztalattal várják Önt, előre egyeztetve akár a normál munkaidő után is.

Amennyiben hirdetésem felkeltette érdeklődését, várom hívását, akár hétvégén is! S.S.

INGATLAN ADATAI

Ingatlan jellege
családi ház
Belső terület
254 m²
Telek terület
781 m²
Építési állapot
használt
Építési mód
- nem meghatározott -
Szobák száma
6 szoba
Épület szintje
1.
Ingatlan állapot
kívül: jó
belül: jó
Fűtés
villany
Komfort
duplakomfort
Közműállapot
csatorna: bekötve
gáz: bekötve
villany: bekötve
víz: bekötve
Energetika
TÉRKÉP

Pest megye, Hévízgyörk

KAPCSOLAT
Suba Sándor
Suba Sándor


+36 30 556 5226

s.suba@gdn-ingatlan.hu

KAPCSOLAT
Suba Sándor

+36 30 556

s.suba@

Az időpont kérés naptár ikonja
IDŐPONTOT KÉREK
A visszahívás kérés telefon ikonja egy azt körbe ölelő nyíllal
VISSZAHÍVÁST KÉREK
Ajánlom egy ismerősömnek ikon
AJÁNLOM EGY ISMERŐSÖMNEK
Facebook megosztás ikon
MEGOSZTÁS

KAPCSOLATFELVÉTEL

Küldés

Az üzenetet sikeresen elküldtük!
Hiba történt!
INGATLAN ADATAI

Ingatlan jellege

családi ház

Belső terület

254 m²

Telek terület

781 m²

Építési állapot

használt

Építési mód

- nem meghatározott -

Szobák száma

6 szoba

Épület szintje

1.

Ingatlan állapot

kívül: jó
belül: jó

Fűtés

villany

Komfort

duplakomfort

Közműállapot

csatorna: bekötve
gáz: bekötve
villany: bekötve
víz: bekötve

Energetika

Az időpont kérés naptár ikonja
HTML
Az időpont kérés naptár ikonja
PDF
Pest megye - Hévízgyörk
Pest megye - Hévízgyörk
Pest megye - Hévízgyörk
Pest megye - Hévízgyörk
Pest megye - Hévízgyörk
Pest megye - Hévízgyörk
Pest megye - Hévízgyörk
Pest megye - Hévízgyörk
Pest megye - Hévízgyörk
Pest megye - Hévízgyörk
Pest megye - Hévízgyörk
Pest megye - Hévízgyörk
Pest megye - Hévízgyörk
Pest megye - Hévízgyörk
Pest megye - Hévízgyörk
Pest megye - Hévízgyörk