GDN Ingatlanhálózat

KAPCSOLAT
Suba Sándor


+36 30 556

s.suba@

Az időpont kérés naptár ikonja
IDŐPONTOT KÉREK
A visszahívás kérés telefon ikonja egy azt körbe ölelő nyíllal
VISSZAHÍVÁST KÉREK
Ajánlom egy ismerősömnek ikon
AJÁNLOM EGY ISMERŐSÖMNEK
Facebook megosztás ikon
MEGOSZTÁS

KAPCSOLATFELVÉTEL

Küldés

Az üzenetet sikeresen elküldtük!
Hiba történt!
INGATLAN ADATAI

Ingatlan jellege

családi ház

Belső terület

163 m²

Telek terület

517 m²

Építési állapot

használt

Építési mód

- nem meghatározott -

Szobák száma

5 szoba

Épület szintje

1.

Ingatlan állapot

kívül: jó
belül: jó

Fűtés

cirko

Komfort

duplakomfort

Közműállapot

csatorna: bekötve
gáz: bekötve
villany: bekötve
víz: bekötve

Az időpont kérés naptár ikonja
HTML
Az időpont kérés naptár ikonja
PDF
Eladó ház
Belső azonosító:
387397
Ingatlan azonosító:
34930_gimp

Jász-Nagykun-Szolnok megye, Jászapáti

Irányár

49.9 M Ft

Szobák

5 szoba

Emelet

Terület

163 m²

Telek terület

517 m²
INGATLAN LEÍRÁSA
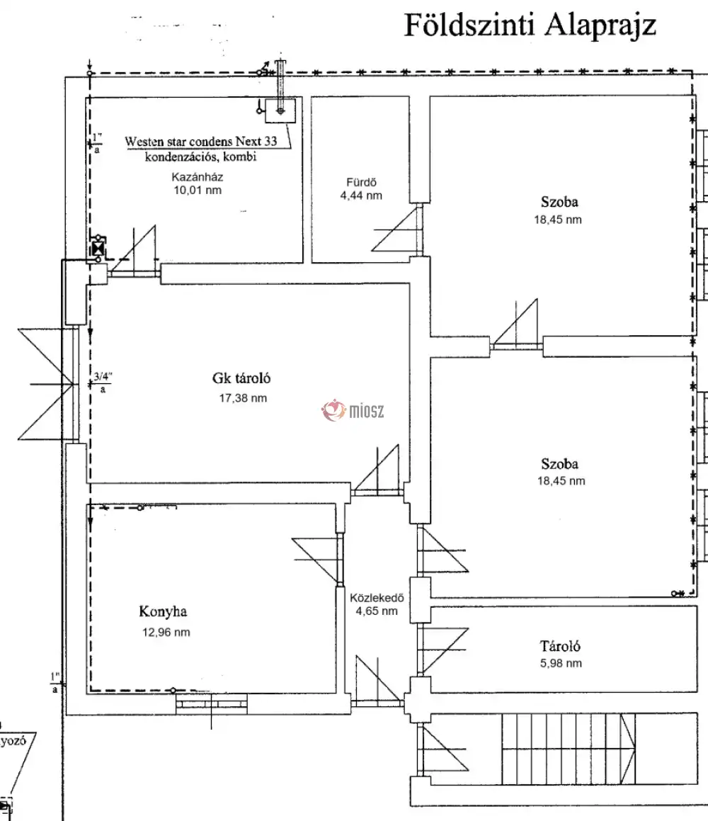
2 GENERÁCIÓS CSALÁDI HÁZ, CSENDES HELYEN!

Megvételre kínálok Jászapáti csendes részén, 517 nm-es telken fekvő, 2 szintes, nettó 163,12 nm, bruttó: 200,51nm 1982-ben épült, tégla falazatú, hatalmas, tényleges 2 külön bejárattal ellátott, külön lakórészekkel rendelkező, de belülről átjárható családi házat.

Az épületet fűtését gáz, kombi cirkó biztosítja padlófűtés segítségével, valamint 1 db hűtő-fűtő klíma is rendelkezésre áll, a melegvízért szintén a kombi felel.

2024-ben belülről teljesen megújult az épület:
- fali padlóburkolatok cseréje
- víz-villany-gáz-csatornahálózat csere
- padlófűtés kialakítása
- új kazán
- nyílászáró csere
- fürdők kialakítása
- helyiségek újra gondolása
- tényleges 2 lakrész kialakítása
- klíma telepítése
- elektromos kapu telepítése

Egy jármű garázsban, 4 további pedig az urvaron fér el, valamint egy 20 nm-es kis házikó is része a kinti térnek, mely pakolásra alkalmas.

Infrastruktúrája jónak mondható, 550-1300 méteren belül elérhető buszmegálló, bolt, iskola, óvoda, bölcsőde.

A szomszédok kedvesek és barátságosak, mellyel egy igazán élhető lakóközösséget alkotnak.

AZ INGATLAN PER, TEHER és IGÉNYMENTES!

INGYENES hitel tanácsadás!
CSOK Plusz ügyintézés!

BANKFÜGGETLEN hitelcentrumunk minden elérhető bank és hitelintézet ajánlatát versenyezteti az Ön kedvéért, ráadásul DÍJMENTESEN.

Önnek nincs más dolga, mint elbeszélgetni munkatársunkkal, aki a hallott információk alapján versenyre hívja a bankokat, hogy Ön hosszú távon is a legjobb konstrukciót kaphassa. A legjobb ajánlatokból végül Ön választhatja ki a nyertest.
Munkatársaink sokéves szakmai tapasztalattal várják Önt, előre egyeztetve akár a normál munkaidő után is.

Amennyiben a hirdetés felkeltette érdeklődését, várom hívását, akár hétvégén is! S.S.

INGATLAN ADATAI

Ingatlan jellege
családi ház
Belső terület
163 m²
Telek terület
517 m²
Építési állapot
használt
Építési mód
- nem meghatározott -
Szobák száma
5 szoba
Épület szintje
1.
Ingatlan állapot
kívül: jó
belül: jó
Fűtés
cirko
Komfort
duplakomfort
Közműállapot
csatorna: bekötve
gáz: bekötve
villany: bekötve
víz: bekötve
Energetika
TÉRKÉP

Jász-Nagykun-Szolnok megye, Jászapáti

KAPCSOLAT
Suba Sándor
Suba Sándor


+36 30 556 5226

s.suba@gdn-ingatlan.hu

KAPCSOLAT
Suba Sándor

+36 30 556

s.suba@

Az időpont kérés naptár ikonja
IDŐPONTOT KÉREK
A visszahívás kérés telefon ikonja egy azt körbe ölelő nyíllal
VISSZAHÍVÁST KÉREK
Ajánlom egy ismerősömnek ikon
AJÁNLOM EGY ISMERŐSÖMNEK
Facebook megosztás ikon
MEGOSZTÁS

KAPCSOLATFELVÉTEL

Küldés

Az üzenetet sikeresen elküldtük!
Hiba történt!
INGATLAN ADATAI

Ingatlan jellege

családi ház

Belső terület

163 m²

Telek terület

517 m²

Építési állapot

használt

Építési mód

- nem meghatározott -

Szobák száma

5 szoba

Épület szintje

1.

Ingatlan állapot

kívül: jó
belül: jó

Fűtés

cirko

Komfort

duplakomfort

Közműállapot

csatorna: bekötve
gáz: bekötve
villany: bekötve
víz: bekötve

Energetika

Az időpont kérés naptár ikonja
HTML
Az időpont kérés naptár ikonja
PDF
Jász-Nagykun-Szolnok megye - Jászapáti
Jász-Nagykun-Szolnok megye - Jászapáti
Jász-Nagykun-Szolnok megye - Jászapáti
Jász-Nagykun-Szolnok megye - Jászapáti
Jász-Nagykun-Szolnok megye - Jászapáti
Jász-Nagykun-Szolnok megye - Jászapáti
Jász-Nagykun-Szolnok megye - Jászapáti
Jász-Nagykun-Szolnok megye - Jászapáti
Jász-Nagykun-Szolnok megye - Jászapáti
Jász-Nagykun-Szolnok megye - Jászapáti
Jász-Nagykun-Szolnok megye - Jászapáti
Jász-Nagykun-Szolnok megye - Jászapáti
Jász-Nagykun-Szolnok megye - Jászapáti
Jász-Nagykun-Szolnok megye - Jászapáti
Jász-Nagykun-Szolnok megye - Jászapáti
Jász-Nagykun-Szolnok megye - Jászapáti