GDN Ingatlanhálózat

KAPCSOLAT
Kocsis Zoltán


+36 30 667

z.kocsis@

Az időpont kérés naptár ikonja
IDŐPONTOT KÉREK
A visszahívás kérés telefon ikonja egy azt körbe ölelő nyíllal
VISSZAHÍVÁST KÉREK
Ajánlom egy ismerősömnek ikon
AJÁNLOM EGY ISMERŐSÖMNEK
Facebook megosztás ikon
MEGOSZTÁS

KAPCSOLATFELVÉTEL

Küldés

Az üzenetet sikeresen elküldtük!
Hiba történt!
INGATLAN ADATAI

Ingatlan jellege

családi ház

Belső terület

140 m²

Telek terület

720 m²

Építési állapot

használt

Építési mód

- nem meghatározott -

Szobák száma

5 szoba

Épület szintje

1.

Ingatlan állapot

kívül: jó
belül: jó

Fűtés

cirko

Komfort

összkomfort

Közműállapot

csatorna: bekötve
gáz: bekötve
villany: bekötve
víz: bekötve

Az időpont kérés naptár ikonja
HTML
Az időpont kérés naptár ikonja
PDF
Eladó ház
Belső azonosító:
388667
Ingatlan azonosító:
35197_gimp

Bács-Kiskun megye, Tiszaalpár

Irányár

24.6 M Ft

Szobák

5 szoba

Emelet

Terület

140 m²

Telek terület

720 m²
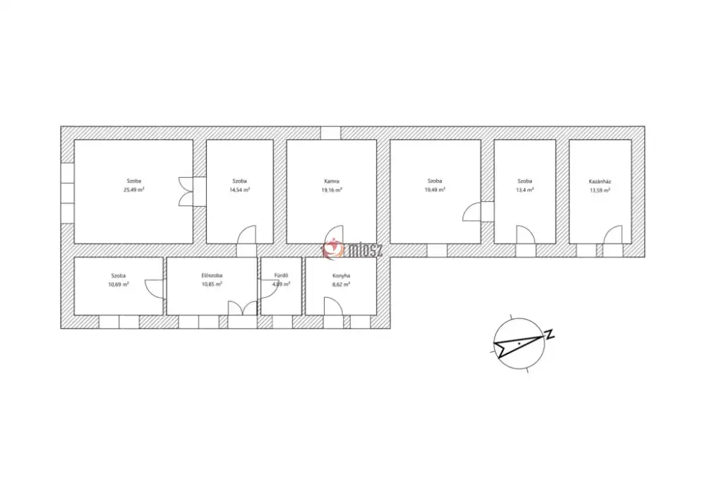
INGATLAN LEÍRÁSA
Otthonok és megoldások!

Tiszaalpár központjában két utcára nyíló, osztható családi ház eladó.

Két helyrajzi számon fekvő, két utcáról is megközelíthető, összesen 720m²-es telken eladó egy 141 m²-es vegyes falazatú családi ház.
Az ingatlan kiváló lehetőséget rejt magában: két külön bejáratú lakóegységgé alakítható, így akár két generáció együttélésére vagy befektetésre is alkalmas.
A fűtés gáz és vegyestüzelésű kazánnal, radiátoros rendszeren keresztül történik.
Az épület részben szigetelt, teljesen közművesített, és rövid időn belül birtokba vehető.

Főbb jellemzők:

- 141 m² lakótér, 5 szoba
- két helyrajzi szám, két utcafront
- leválasztható, két önálló ház is kialakítható
- gáz és vegyestüzelésű kazán, radiátoros központi fűtés
- teljesen közművesített
- részben szigetelt épület
- gyorsan birtokba vehető

Kiváló elhelyezkedése miatt minden fontos szolgáltatás néhány perces sétával elérhető.
Akár összeköltöző családtagoknak, akár befektetőknek remek választás!

INGATLAN ADATAI

Ingatlan jellege
családi ház
Belső terület
140 m²
Telek terület
720 m²
Építési állapot
használt
Építési mód
- nem meghatározott -
Szobák száma
5 szoba
Épület szintje
1.
Ingatlan állapot
kívül: jó
belül: jó
Fűtés
cirko
Komfort
összkomfort
Közműállapot
csatorna: bekötve
gáz: bekötve
villany: bekötve
víz: bekötve
Energetika
TÉRKÉP

Bács-Kiskun megye, Tiszaalpár

KAPCSOLAT
Kocsis Zoltán
Kocsis Zoltán


+36 30 667 3612

z.kocsis@gdn-ingatlan.hu

KAPCSOLAT
Kocsis Zoltán

+36 30 667

z.kocsis@

Az időpont kérés naptár ikonja
IDŐPONTOT KÉREK
A visszahívás kérés telefon ikonja egy azt körbe ölelő nyíllal
VISSZAHÍVÁST KÉREK
Ajánlom egy ismerősömnek ikon
AJÁNLOM EGY ISMERŐSÖMNEK
Facebook megosztás ikon
MEGOSZTÁS

KAPCSOLATFELVÉTEL

Küldés

Az üzenetet sikeresen elküldtük!
Hiba történt!
INGATLAN ADATAI

Ingatlan jellege

családi ház

Belső terület

140 m²

Telek terület

720 m²

Építési állapot

használt

Építési mód

- nem meghatározott -

Szobák száma

5 szoba

Épület szintje

1.

Ingatlan állapot

kívül: jó
belül: jó

Fűtés

cirko

Komfort

összkomfort

Közműállapot

csatorna: bekötve
gáz: bekötve
villany: bekötve
víz: bekötve

Energetika

Az időpont kérés naptár ikonja
HTML
Az időpont kérés naptár ikonja
PDF
Bács-Kiskun megye - Tiszaalpár
Bács-Kiskun megye - Tiszaalpár
Bács-Kiskun megye - Tiszaalpár
Bács-Kiskun megye - Tiszaalpár
Bács-Kiskun megye - Tiszaalpár
Bács-Kiskun megye - Tiszaalpár
Bács-Kiskun megye - Tiszaalpár
Bács-Kiskun megye - Tiszaalpár
Bács-Kiskun megye - Tiszaalpár
Bács-Kiskun megye - Tiszaalpár
Bács-Kiskun megye - Tiszaalpár