KAPCSOLAT
IDŐPONTOT KÉREK
VISSZAHÍVÁST KÉREK
AJÁNLOM EGY ISMERŐSÖMNEK
MEGOSZTÁS
KAPCSOLATFELVÉTEL
Az üzenetet sikeresen elküldtük!
Hiba történt!
INGATLAN ADATAI
Ingatlan jellege
telek
Telek terület
1019 m²
Ingatlan állapot
kívül: jó
belül: jó
Fűtés
egyéb
Komfort
komfort
Közműállapot
csatorna: telken
gáz: utcában
villany: telken
víz: telken
Művelési ága
építési telek
HTML
PDF
Eladó építési telek
Belső azonosító:
393455
Ingatlan azonosító:
35901_gimp
Pest megye, Gyál
Irányár
49.9 M Ft
Emelet
Telek terület
1019 m²
INGATLAN LEÍRÁSA
REMEK LEHETŐSÉG GYÁLON, CSAK NÁLUNK, ÜRES ÉPÍTÉSI TELKEK, MOST AKCIÓS ÁRON! Gyálon az Egressy út - Venyige köz környezetében, eladásra kínálunk 2 db. egymás mellett lévő építési telket egyben, vagy külön-külön is.
Igény szerint komplett engedélyeztetett tervekkel 2 db. ikerház megépítésére, összesen 4 db. lakásra!
A víz csatorna bevezetés folyamatban és az elektromos órafogadó kiépítés szintén folyamatban + az EON hálózatfejlesztési hozzájárulás is benne van az árban!
Az áramot elviekben 2027. májusában hozzák, erről írásos EON papírja is van a tulajdonosnak.
A telkek megközelíthetősége egy saját-privát nyeles részen lehetséges, amely 6 méter széles.
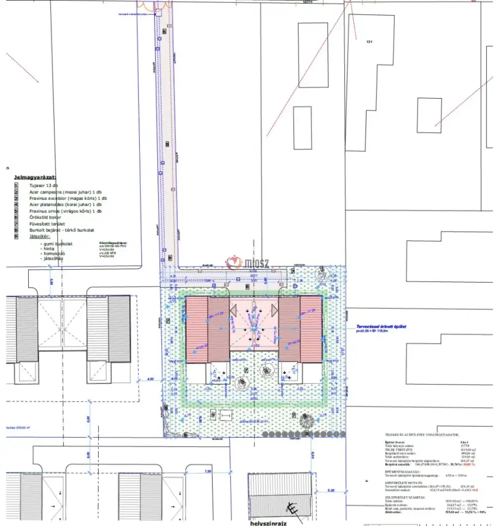
TELEKRE ÉS AZ ÉPÜLETRE VONATKOZÓ ADATOK:
Építési övezet: Lke-1
TELEK TERÜLETE: 1019,00 m2
Beépíthető telek terület: 890,00 m2
Telek nyélterülete: 129,00 m2
Tervezett lakóépület beépített alapterülete: 264,67 m2
Beépítési százalék: 264,67/890,00=0,297382 - 29,74%< 30,00 %
ÉPÍTMÉNYMAGASSÁG :
Tervezett lakóépület építménymagassága: 4,58 m < 5,00 m
SZINTERÜLETI MUTATÓ:
Tervezett lakóépület szintterülete (264,67+159,52): 424,19 m2
Szinterületi mutató: 424,19 m2/1019,00m2= 0,4162 <0,8
ZÖLDTERÜLET SZÁMÍTÁS:
Telek területe: 1019,00 m2 → 100,00 %
Épületek területe: 264,67 m2 → 25,97%
Belső utak, parkolók, teraszok területe: 219,33 m2 → 21,53%
Zöldterület: 535,00 m2 → 52,50 % > 50%
A telkek eladási ára darabonként: 49,9 MFt./db.
Információk szerint, az Egressy út teljes felújítása-kiszélesítése-átépítése 2028-ban várható.
Az ingatlan részletes ismertetése és bemutatása előre egyeztetett időpontban lehetséges, melyet nagyon rugalmasan kezelünk, akár HÉTVÉGÉN is.
További kérdéseivel kapcsolatban várom a jelentkezését.
Amennyiben Önnek a vásárláshoz szüksége lenne hitelre, babaváró kölcsönre, lakástakarékra, stb., kezdeményezheti a kapcsolatfelvételt bankfüggetlen hitelügyintézőinkkel, teljesen DÍJMENTESEN.
Közel 25 év szakmai tapasztalattal rendelkezem, eladó vagy kiadó ingatlana értékesítése vagy bérbeadása esetén, készséggel állok az Ön rendelkezésére is, keressen bizalommal.
Igény szerint komplett engedélyeztetett tervekkel 2 db. ikerház megépítésére, összesen 4 db. lakásra!
A víz csatorna bevezetés folyamatban és az elektromos órafogadó kiépítés szintén folyamatban + az EON hálózatfejlesztési hozzájárulás is benne van az árban!
Az áramot elviekben 2027. májusában hozzák, erről írásos EON papírja is van a tulajdonosnak.
A telkek megközelíthetősége egy saját-privát nyeles részen lehetséges, amely 6 méter széles.
TELEKRE ÉS AZ ÉPÜLETRE VONATKOZÓ ADATOK:
Építési övezet: Lke-1
TELEK TERÜLETE: 1019,00 m2
Beépíthető telek terület: 890,00 m2
Telek nyélterülete: 129,00 m2
Tervezett lakóépület beépített alapterülete: 264,67 m2
Beépítési százalék: 264,67/890,00=0,297382 - 29,74%< 30,00 %
ÉPÍTMÉNYMAGASSÁG :
Tervezett lakóépület építménymagassága: 4,58 m < 5,00 m
SZINTERÜLETI MUTATÓ:
Tervezett lakóépület szintterülete (264,67+159,52): 424,19 m2
Szinterületi mutató: 424,19 m2/1019,00m2= 0,4162 <0,8
ZÖLDTERÜLET SZÁMÍTÁS:
Telek területe: 1019,00 m2 → 100,00 %
Épületek területe: 264,67 m2 → 25,97%
Belső utak, parkolók, teraszok területe: 219,33 m2 → 21,53%
Zöldterület: 535,00 m2 → 52,50 % > 50%
A telkek eladási ára darabonként: 49,9 MFt./db.
Információk szerint, az Egressy út teljes felújítása-kiszélesítése-átépítése 2028-ban várható.
Az ingatlan részletes ismertetése és bemutatása előre egyeztetett időpontban lehetséges, melyet nagyon rugalmasan kezelünk, akár HÉTVÉGÉN is.
További kérdéseivel kapcsolatban várom a jelentkezését.
Amennyiben Önnek a vásárláshoz szüksége lenne hitelre, babaváró kölcsönre, lakástakarékra, stb., kezdeményezheti a kapcsolatfelvételt bankfüggetlen hitelügyintézőinkkel, teljesen DÍJMENTESEN.
Közel 25 év szakmai tapasztalattal rendelkezem, eladó vagy kiadó ingatlana értékesítése vagy bérbeadása esetén, készséggel állok az Ön rendelkezésére is, keressen bizalommal.
INGATLAN ADATAI
Ingatlan jellege
telek
Telek terület
1019 m²
Ingatlan állapot
kívül: jó
belül: jó
belül: jó
Fűtés
egyéb
Komfort
komfort
Közműállapot
csatorna: telken
gáz: utcában
villany: telken
víz: telken
gáz: utcában
villany: telken
víz: telken
Művelési ága
építési telek
TÉRKÉP
Pest megye, Gyál
KAPCSOLAT
Nyegrutz Tamás
+36 30 560 5587
ny.tamas@gdn-ingatlan.hu
KAPCSOLAT
IDŐPONTOT KÉREK
VISSZAHÍVÁST KÉREK
AJÁNLOM EGY ISMERŐSÖMNEK
MEGOSZTÁS
KAPCSOLATFELVÉTEL
Az üzenetet sikeresen elküldtük!
Hiba történt!
INGATLAN ADATAI
Ingatlan jellege
telek
Telek terület
1019 m²
Ingatlan állapot
kívül: jó
belül: jó
Fűtés
egyéb
Komfort
komfort
Közműállapot
csatorna: telken
gáz: utcában
villany: telken
víz: telken
Művelési ága
építési telek
HTML
PDF