GDN Ingatlanhálózat

KAPCSOLAT
Tromposch Edina


+36 30 220

e.tromposch@

Az időpont kérés naptár ikonja
IDŐPONTOT KÉREK
A visszahívás kérés telefon ikonja egy azt körbe ölelő nyíllal
VISSZAHÍVÁST KÉREK
Ajánlom egy ismerősömnek ikon
AJÁNLOM EGY ISMERŐSÖMNEK
Facebook megosztás ikon
MEGOSZTÁS

KAPCSOLATFELVÉTEL

Küldés

Az üzenetet sikeresen elküldtük!
Hiba történt!
INGATLAN ADATAI

Ingatlan jellege

ikerház

Belső terület

115 m²

Telek terület

332 m²

Építési állapot

újszerű

Építési mód

- nem meghatározott -

Szobák száma

3+2 félszoba

Épület szintje

1.

Ingatlan állapot

kívül: jó
belül: jó

Fűtés

egyéb

Komfort

duplakomfort

Közműállapot

csatorna: telken
gáz: nincs adat
villany: telken
víz: telken

Az időpont kérés naptár ikonja
HTML
Az időpont kérés naptár ikonja
PDF
Eladó újszerű ikerház
Belső azonosító:
391703
Ingatlan azonosító:
35589_gimp

Budapest, XVI. kerület, Sashalom

Irányár

199.9 M Ft

Szobák

3+2 félszoba

Emelet

Terület

115 m²

Telek terület

332 m²
INGATLAN LEÍRÁSA
CSAK NÁLUNK!
ÚJSZERŰ, NAPELEMES, FŰTHETŐ MEDENCÉS IKERHÁZ ELADÓ SASHALOM KIEMELT RÉSZÉN – ZUGLÓ HATÁRÁN

Prémium műszaki tartalom, alacsony rezsi, kiváló lokáció – itt valóban nincs kompromisszum.

Sashalom egyik legkeresettebb, csendes kertvárosi utcájában, mindössze 100 méterre Zuglótól kínálunk megvételre egy 8 éve épült, újszerű állapotú, bruttó 139 m²-es ikerházat, 332 m²-es, gondozott telken.


Főbb paraméterek:

- Bruttó terület: 139 m²

- Telek területe: 332 m²

- Építés éve: 2017


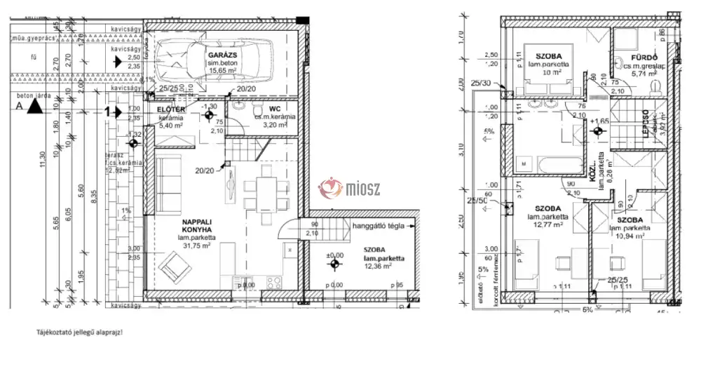
ELRENDEZÉS

Földszint - kertkapcsolattal:

- Világos, délnyugati tájolású nappali–konyha–étkező

- Hálószoba

- Fürdőszoba WC-vel

- Előszoba, közlekedő

- Garázs közvetlenül az előszobából

A nappaliból közvetlen kijárat nyílik a teraszos kertbe, ahol egy
5×3 méteres, beépített, hőszivattyúval fűthető medence,
6 m²-es faház, valamint tűzrakóhely került kialakításra.
A fűthető medence nemcsak a nyári hónapokban, hanem egész évben valódi kikapcsolódást biztosíthat.
A térkövezett udvar két autó parkolását teszi lehetővé.

Az egyedi tervezésű konyhabútor beépített gépekkel, kerámialapos főzőlappal felszerelt.

Emelet:

- 3 különnyíló hálószoba

- Tágas fürdőszoba WC-vel és káddal

- Az egyik hálószobához saját, zuhanyzós fürdőszoba tartozik

Műszaki tartalom, energetika:

- Hőszivattyús fűtés–hűtés rendszer

- Teljes épületben padlófűtés, emeleten kiegészítő falfűtés

- Nyári hűtés: földszinten klíma, emeleten falhűtés

- 14,3 kWh teljesítményű napelemes rendszer, szaldó elszámolással

- Porotherm Klíma tégla falazat, 15 cm homlokzati hőszigeteléssel

A modern műszaki megoldások kedvező energetikai besorolást és alacsony költségeket biztosítanak.

Extrák:

- Riasztórendszer

- Beépített konyhagépek

- Fűthető medence

- Garázs + 2 felszíni gépkocsibeálló

Lokáció és infrastruktúra:

- Bölcsőde, óvoda gyalogosan elérhető

- Iskola, orvosi rendelő, játszótér, bevásárlási lehetőségek pár perces távolságban

Örs Vezér tere
– autóval kb. 5 perc, tömegközlekedéssel ~10 perc

Összegzés

Ez az ingatlan nem kompromisszumos, hanem tudatos választás:
kiváló műszaki tartalom, átgondolt elrendezés, fűthető medencés kert és kitűnő lokáció egyben.

Amennyiben felkeltette érdeklődését, várom hívását vagy üzenetét, és örömmel állok rendelkezésére további információval, illetve személyes megtekintéssel kapcsolatban. Megtekintés előre egyeztetett időpontban, elsősorban hétvégén.

Eladná ingatlanát?
Értékesítésében átgondolt stratégiával, aktív jelenléttel és végigkísért folyamattal állok rendelkezésére.

A hirdetésben szereplő adatok tájékoztató jellegűek, nem minősülnek ajánlattételnek.

INGATLAN ADATAI

Ingatlan jellege
ikerház
Belső terület
115 m²
Telek terület
332 m²
Építési állapot
újszerű
Építési mód
- nem meghatározott -
Szobák száma
3+2 félszoba
Épület szintje
1.
Ingatlan állapot
kívül: jó
belül: jó
Fűtés
egyéb
Komfort
duplakomfort
Közműállapot
csatorna: telken
gáz: nincs adat
villany: telken
víz: telken
Energetika
TÉRKÉP

Budapest, XVI. kerület, Sashalom

KAPCSOLAT
Tromposch Edina
Tromposch Edina


+36 30 220 9539

e.tromposch@gdn-ingatlan.hu

KAPCSOLAT
Tromposch Edina

+36 30 220

e.tromposch@

Az időpont kérés naptár ikonja
IDŐPONTOT KÉREK
A visszahívás kérés telefon ikonja egy azt körbe ölelő nyíllal
VISSZAHÍVÁST KÉREK
Ajánlom egy ismerősömnek ikon
AJÁNLOM EGY ISMERŐSÖMNEK
Facebook megosztás ikon
MEGOSZTÁS

KAPCSOLATFELVÉTEL

Küldés

Az üzenetet sikeresen elküldtük!
Hiba történt!
INGATLAN ADATAI

Ingatlan jellege

ikerház

Belső terület

115 m²

Telek terület

332 m²

Építési állapot

újszerű

Építési mód

- nem meghatározott -

Szobák száma

3+2 félszoba

Épület szintje

1.

Ingatlan állapot

kívül: jó
belül: jó

Fűtés

egyéb

Komfort

duplakomfort

Közműállapot

csatorna: telken
gáz: nincs adat
villany: telken
víz: telken

Energetika

Az időpont kérés naptár ikonja
HTML
Az időpont kérés naptár ikonja
PDF
Budapest, XVI. kerület - Sashalom
Budapest, XVI. kerület - Sashalom
Budapest, XVI. kerület - Sashalom
Budapest, XVI. kerület - Sashalom
Budapest, XVI. kerület - Sashalom
Budapest, XVI. kerület - Sashalom
Budapest, XVI. kerület - Sashalom
Budapest, XVI. kerület - Sashalom
Budapest, XVI. kerület - Sashalom
Budapest, XVI. kerület - Sashalom
Budapest, XVI. kerület - Sashalom
Budapest, XVI. kerület - Sashalom
Budapest, XVI. kerület - Sashalom