GDN Ingatlanhálózat

KAPCSOLAT
Nyegrutz Tamás


+36 30 560

ny.tamas@

Az időpont kérés naptár ikonja
IDŐPONTOT KÉREK
A visszahívás kérés telefon ikonja egy azt körbe ölelő nyíllal
VISSZAHÍVÁST KÉREK
Ajánlom egy ismerősömnek ikon
AJÁNLOM EGY ISMERŐSÖMNEK
Facebook megosztás ikon
MEGOSZTÁS

KAPCSOLATFELVÉTEL

Küldés

Az üzenetet sikeresen elküldtük!
Hiba történt!
INGATLAN ADATAI

Ingatlan jellege

ipari ingatlan

Belső terület

945 m²

Telek terület

2394 m²

Építési mód

- nem meghatározott -

Ingatlan állapot

kívül: jó
belül: jó

Fűtés

egyéb

Komfort

komfort

Közműállapot

csatorna: nincs adat
gáz: nincs adat
villany: nincs adat
víz: nincs adat

Kilátás

utcára

Az időpont kérés naptár ikonja
HTML
Az időpont kérés naptár ikonja
PDF
Eladó ipari ingatlan
Belső azonosító:
393502
Ingatlan azonosító:
35919_gimp

Pest megye, Diósd

Irányár

299 M Ft

Szobák

0 szoba

Emelet

Terület

945 m²

Telek terület

2394 m²
INGATLAN LEÍRÁSA
CSAK NÁLUNK! Diósdi iparterület egyik legjobban megközelíthető részén, az M0 autóút lehajtójától mindössze néhány percnyire található ez a több épületrészből álló, nagy kapacitású ipari‑kereskedelmi telephely amelyet eladásra kínálunk.

A létesítmény egyetlen helyszínen biztosítja a raktározási, szerviz-, logisztikai és adminisztratív tevékenységek teljes körű hátterét.
A területen 2 db. átgondolt elrendezésű épület garantálja a hatékony működést, amelyek átlátható folyamatokat és magas szintű üzemi rugalmasságot tesznek lehetővé.

Felépítmények nettó hasznos alapterülete összesen: 945 m².
Telek önálló helyrajzi számon van, területe összesen: 2394 m².

A telephely korábban professzionális autószerelő és járműértékesítő központként működött, teljes körű műszaki infrastruktúrával, bemutatóteremmel, több szerelőállással, gépi szellőzéssel - kipufogógáz elvezetéssel, raktárakkal illetve alkatrészértékesítő helyiségekkel valamint iroda és lakórészekkel is rendelkezik.

A meglévő kialakításnak köszönhetően az új tulajdonos számára továbbra is kiválóan alkalmas autószervizre, értékesítésre vagy bármilyen járműipari tevékenységre, ugyanakkor a terek méretezése és sokoldalúsága miatt más ipari, kereskedelmi vagy logisztikai profil is könnyedén megvalósítható.

Az ingatlan jogi besorolása: "Kivett üzletház, irodaépület, raktár udvar" amely széles körű felhasználási lehetőséget biztosít, és jogilag is támogatja a többfunkciós működést.

Raktárak és műhelyterek:
A telephely több, különböző méretű raktárhelyiséggel és műhelyekkel rendelkezik, amelyeknek az összesített alapterülete közel 500 m².
A kisebb, 45–50 m²-es egység ideális elkülönített tárolásra vagy speciális műhelyfeladatokra, míg a nagyobb, összesen közel 450 m²-es csarnokok ( 2 db. ) ipari szintű árukezelést, gépek elhelyezését vagy gyártási folyamatokat is kiszolgálnak.
A raktárakhoz kapcsolódó teakonyha, mosdók, előtér és iroda biztosítja a napi működéshez szükséges háttérfunkciókat.
A központi épület szervizrészlege kifejezetten járműjavításra kialakított területként funkcionált, ahol autó- és motorkerékpár-szerelő állások, gépészeti helyiségek, szellőzőrendszerek és hulladékkezelő pontok találhatók.
A csarnokhoz öltözők, mosdók, kazánház és lépcsőház is kapcsolódik, így a szerviztevékenység minden feltétele adott.

A csarnokok / telephely kamionnal is megközelíthetők, így logisztikai szempontból is kiemelkedően jól használhatók, ezt fontos kiemelni!

Irodák és adminisztratív terek:
A telephely irodai infrastruktúrája több szinten helyezkedik el.
A földszinten a különböző helyiségekhez kapcsolódó kisebb irodák és személyzeti helyiségek találhatók, míg a tetőtérben igény esetén két "különálló/leválasztató-szeparálható" -de igény esetén mégis átjárható irodablokk kapott helyet.

A két irodablokk külön-külön lépcsőházból is megközelíthetőek !

Ezekben több, külön bejáratú iroda, teakonyha, mosdók, zuhanyzók és tárolók biztosítják a kényelmes és hatékony munkavégzést, sőt lakás funkciót is el tudnak látni ha arra lenne szükség.

Az irodahelyiségek mérete: a kb. 16 m²-től egészen a 106 m² egybefüggő alapterület között mozog, így kisebb és nagyobb csapatok számára is jól használhatók.
Itt is található további alkatrészraktár/tárolóhelyiség/irattár stb. és a kiszolgáló helyiségek, így a műszaki és adminisztratív területek jól elkülöníthetők.

Bemutatóterem:
A főépület földszintjén egy 120 m²-es, nagy üvegfelületekkel rendelkező bemutatóterem található, amely a telephely "szíve-lelke". Korábban járművek kiállítására szolgált.
A reprezentatív tér közvetlen utcai láthatósággal rendelkezik, így továbbra is kiválóan használható értékesítési, ügyfélfogadási vagy bemutató célokra.

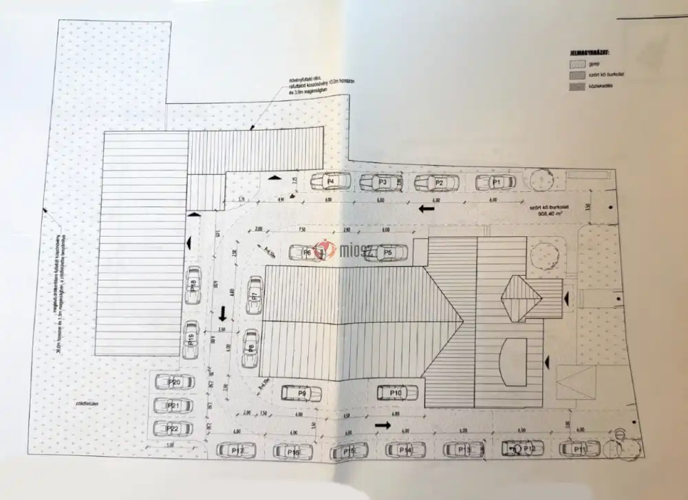
Külső terület és parkolás:
A telek rendezett, jól áttekinthető külső területtel rendelkezik. Legalább 22 db. parkolóhely biztosított a személyautók és kisebb teherjárművek fogadására, a telek kialakítása pedig lehetővé teszi a kamionos közlekedést és rakodást is.
A burkolt felületek nagy terhelést bírnak, a zöldfelületek és növényfuttató elemek pedig esztétikus környezetet teremtenek.
A telephely előtti részen az utcán szintén rengeteg autó tud leparkolni.

Műszaki háttér:
A telephely gépészeti rendszerei ipari használatra lettek méretezve.
Az ingatlan víz- és fűtésrendszere főmérőkkel és almérőkkel is rendelkezik, így az egyes épületrészek rezsifogyasztása külön-külön mérhető és elszámolható. A fűtési rendszer két kazánnal működik, amelyek közül az egyik tartalék kazánként biztosítja az üzembiztonságot. A főépület szervizcsarnokában ezen felül külön gázzal működő hőlégbefúvó is felszerelésre került, amely gyors és hatékony felfűtést tesz lehetővé nagy belmagasság mellett is.

Összegzés:
A telephely korábbi autószerelő és járműértékesítő profilja miatt kiemelkedően jól felszerelt, de kialakítása és méretezése lehetővé teszi, hogy az új tulajdonos szinte bármilyen ipari, kereskedelmi vagy logisztikai tevékenységet megvalósítson. A többfunkciós épületek, a nagy kapacitású csarnokok, a jól szervezett irodai háttér és a rendezett külső terület együttese egy sokoldalúan használható, magas színvonalú ipari ingatlant eredményez.

Az ingatlan vételára: 299 MFt + Áfa.
!!! Fontos kiemelni ugyanakkor, hogy a vevő igényei alapján a telephely a tulajdonos céggel együtt is megvásárolható !!!

Az ingatlan részletes ismertetése és bemutatása előre egyeztetett időpontban lehetséges, melyet nagyon rugalmasan kezelünk, akár HÉTVÉGÉN is.
További kérdéseivel kapcsolatban várom a jelentkezését.
Amennyiben Önnek a vásárláshoz szüksége lenne hitelre, babaváró kölcsönre, lakástakarékra, stb., kezdeményezheti a kapcsolatfelvételt bankfüggetlen hitelügyintézőinkkel, teljesen DÍJMENTESEN.
Közel 25 év szakmai tapasztalattal rendelkezem, eladó vagy kiadó ingatlana értékesítése vagy bérbeadása esetén, készséggel állok az Ön rendelkezésére is, keressen bizalommal.

INGATLAN ADATAI

Ingatlan jellege
ipari ingatlan
Belső terület
945 m²
Telek terület
2394 m²
Építési mód
- nem meghatározott -
Ingatlan állapot
kívül: jó
belül: jó
Fűtés
egyéb
Komfort
komfort
Közműállapot
csatorna: nincs adat
gáz: nincs adat
villany: nincs adat
víz: nincs adat
Kilátás
utcára
Energetika
TÉRKÉP

Pest megye, Diósd

KAPCSOLAT
Nyegrutz Tamás
Nyegrutz Tamás


+36 30 560 5587

ny.tamas@gdn-ingatlan.hu

KAPCSOLAT
Nyegrutz Tamás

+36 30 560

ny.tamas@

Az időpont kérés naptár ikonja
IDŐPONTOT KÉREK
A visszahívás kérés telefon ikonja egy azt körbe ölelő nyíllal
VISSZAHÍVÁST KÉREK
Ajánlom egy ismerősömnek ikon
AJÁNLOM EGY ISMERŐSÖMNEK
Facebook megosztás ikon
MEGOSZTÁS

KAPCSOLATFELVÉTEL

Küldés

Az üzenetet sikeresen elküldtük!
Hiba történt!
INGATLAN ADATAI

Ingatlan jellege

ipari ingatlan

Belső terület

945 m²

Telek terület

2394 m²

Építési mód

- nem meghatározott -

Lift

nincs megadva

Ingatlan állapot

kívül: jó
belül: jó

Fűtés

egyéb

Komfort

komfort

Közműállapot

csatorna: nincs adat
gáz: nincs adat
villany: nincs adat
víz: nincs adat

Kilátás

utcára

Energetika

Az időpont kérés naptár ikonja
HTML
Az időpont kérés naptár ikonja
PDF
Pest megye - Diósd
Pest megye - Diósd
Pest megye - Diósd
Pest megye - Diósd
Pest megye - Diósd
Pest megye - Diósd
Pest megye - Diósd
Pest megye - Diósd
Pest megye - Diósd
Pest megye - Diósd
Pest megye - Diósd
Pest megye - Diósd
Pest megye - Diósd
Pest megye - Diósd
Pest megye - Diósd
Pest megye - Diósd