GDN Ingatlanhálózat

KAPCSOLAT
Fodor Ágnes


+36 20 975

a.fodor@

Az időpont kérés naptár ikonja
IDŐPONTOT KÉREK
A visszahívás kérés telefon ikonja egy azt körbe ölelő nyíllal
VISSZAHÍVÁST KÉREK
Ajánlom egy ismerősömnek ikon
AJÁNLOM EGY ISMERŐSÖMNEK
Facebook megosztás ikon
MEGOSZTÁS

KAPCSOLATFELVÉTEL

Küldés

Az üzenetet sikeresen elküldtük!
Hiba történt!
INGATLAN ADATAI

Ingatlan jellege

panellakás

Belső terület

47 m²

Építési állapot

használt

Építési mód

- nem meghatározott -

Szobák száma

1+1 félszoba

Emelet

1.

Épület szintje

4.

Ingatlan állapot

kívül: jó
belül: jó

Fűtés

távfűtés

Komfort

összkomfort

Kilátás

utcára

Az időpont kérés naptár ikonja
HTML
Az időpont kérés naptár ikonja
PDF
Eladó panellakás
Belső azonosító:
394596
Ingatlan azonosító:
36061_gimp

Pest megye, Százhalombatta, Déli lakótelep

Irányár

53.5 M Ft

Szobák

1+1 félszoba

Emelet

1

Terület

47 m²
INGATLAN LEÍRÁSA
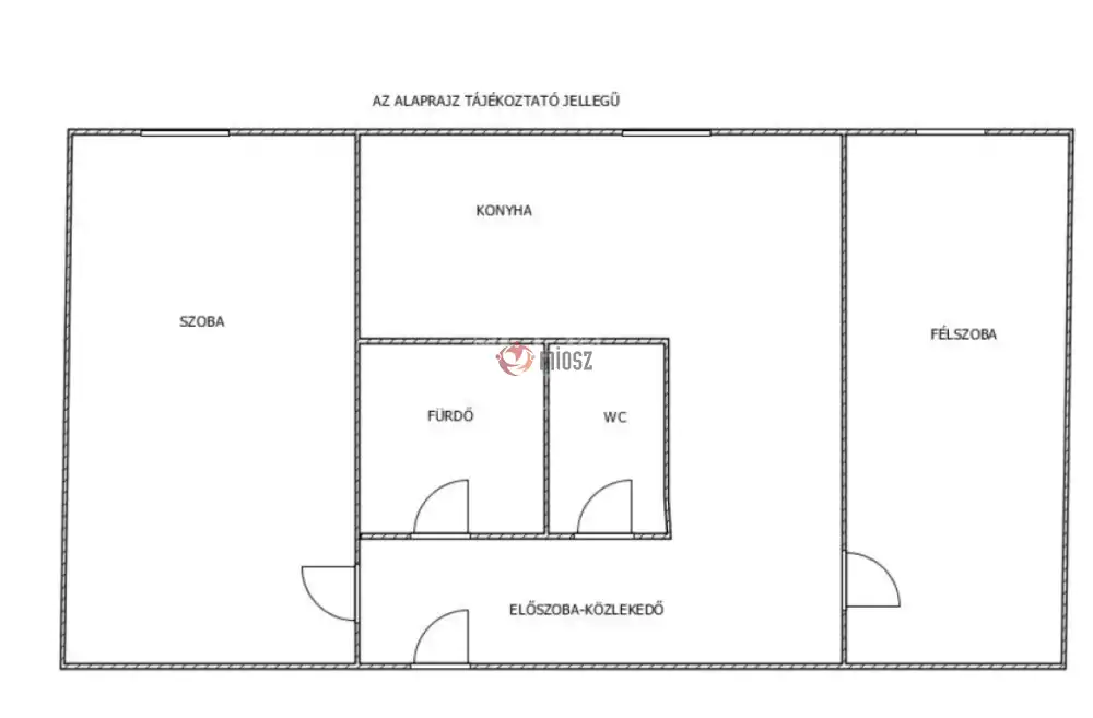
Százhalombattán a Déli lakótelepen kínálunk megvételre egy első emeleti, 47 nm nagyságú, jó állapotú, napfényes, 1+1/2 szobás, középső lakást.

Helyiségei:
- közlekedő
- fürdőszoba
- wc
- konyha, új konyhabútorral
- klímás nappali szoba
- félszoba

Fűtése távfűtés, rezsije alacsony.

A társasház külső szigetelése és az ablakok cseréje megtörtént.

Az ingatlan rövid időn belül birtokba vehető, befektetésnek is kiváló lehetőség.

Irodánk teljes körű banki hitellehetőségekkel, pénzügyi konstrukciókkal, állami támogatásokkal díjmentesen áll az érdeklődők rendelkezésére.

Amennyiben további tájékoztatásra van szüksége, vagy szeretné megtekinteni az ingatlant kérem, hívjon a hét bármely napján.

A hirdetésben szereplő adatok tájékoztató jellegűek, nem minősülnek ajánlattételnek.

INGATLAN ADATAI

Ingatlan jellege
panellakás
Belső terület
47 m²
Építési állapot
használt
Építési mód
- nem meghatározott -
Szobák száma
1+1 félszoba
Emelet
1.
Épület szintje
4.
Ingatlan állapot
kívül: jó
belül: jó
Fűtés
távfűtés
Komfort
összkomfort
Kilátás
utcára
Energetika
TÉRKÉP

Pest megye, Százhalombatta, Déli lakótelep

KAPCSOLAT
Fodor Ágnes
Fodor Ágnes


+36 20 975 6132

a.fodor@gdn-ingatlan.hu

KAPCSOLAT
Fodor Ágnes

+36 20 975

a.fodor@

Az időpont kérés naptár ikonja
IDŐPONTOT KÉREK
A visszahívás kérés telefon ikonja egy azt körbe ölelő nyíllal
VISSZAHÍVÁST KÉREK
Ajánlom egy ismerősömnek ikon
AJÁNLOM EGY ISMERŐSÖMNEK
Facebook megosztás ikon
MEGOSZTÁS

KAPCSOLATFELVÉTEL

Küldés

Az üzenetet sikeresen elküldtük!
Hiba történt!
INGATLAN ADATAI

Ingatlan jellege

panellakás

Belső terület

47 m²

Építési állapot

használt

Építési mód

- nem meghatározott -

Szobák száma

1+1 félszoba

Emelet

1.

Épület szintje

4.

Lift

nincs megadva

Ingatlan állapot

kívül: jó
belül: jó

Fűtés

távfűtés

Komfort

összkomfort

Kilátás

utcára

Energetika

Az időpont kérés naptár ikonja
HTML
Az időpont kérés naptár ikonja
PDF
Pest megye - Százhalombatta
Pest megye - Százhalombatta
Pest megye - Százhalombatta
Pest megye - Százhalombatta
Pest megye - Százhalombatta
Pest megye - Százhalombatta
Pest megye - Százhalombatta
Pest megye - Százhalombatta
Pest megye - Százhalombatta
Pest megye - Százhalombatta