KAPCSOLAT
IDŐPONTOT KÉREK
VISSZAHÍVÁST KÉREK
AJÁNLOM EGY ISMERŐSÖMNEK
MEGOSZTÁS
KAPCSOLATFELVÉTEL
Az üzenetet sikeresen elküldtük!
Hiba történt!
INGATLAN ADATAI
Ingatlan jellege
telek
Telek terület
3762 m²
Ingatlan állapot
kívül: jó
belül: jó
Fűtés
egyéb
Komfort
komfort
Közműállapot
csatorna: telken
gáz: utcában
villany: telken
víz: telken
Művelési ága
üdülő
HTML
PDF
Eladó üdülő
Belső azonosító:
393628
Ingatlan azonosító:
35940_gimp
Pest megye, Pécel, Városközpont
Irányár
89.9 M Ft
Emelet
Telek terület
3762 m²
INGATLAN LEÍRÁSA
CSAK NÁLUNK!
Egyedi LEHETŐSÉG, KIVÁLÓ BEFEKTETÉS!
Eladó külterületi építési telek, engedéllyel Pécel városközpontjában – megkezdett építkezéssel!
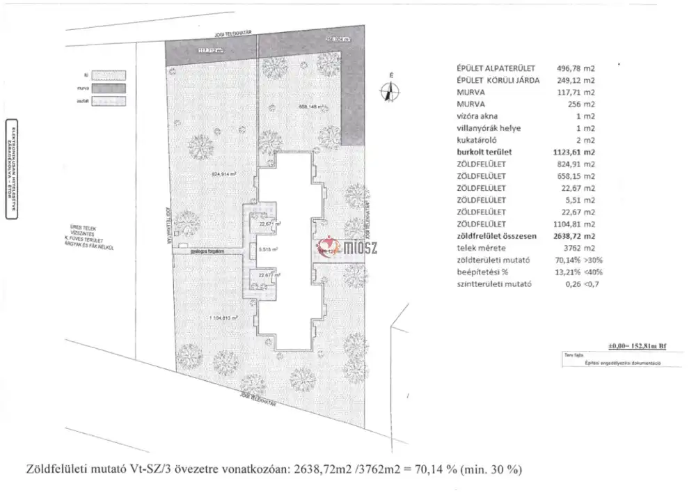
Pécel városközpontjában eladó egy 3762 m²-es külterületi, de beépíthető építési telek, kertvárosi nyugodt környezetben, remek megközelítéssel.
A telekre érvényes, elfogadott tervdokumentáció készült, amely az E-napló rendszerében feltöltve és jóváhagyva szerepel, így az építkezés folytatható. Az építkezés már megkezdődött, a jogszabályok szerint 2027 szeptemberéig szükséges befejezni!
A jóváhagyott tervek alapján egy 787,22 m² bruttó alapterületű épület valósítható meg, amely két nagyméretű lakást tartalmaz:
• lakásonként 393,61 m² alapterület,
• lakásonként 26,04 m² erkély.
Telek jellemzői:
• Telek mérete: 3762 m²
• Övezeti besorolás: jelenleg Vi-SZ/5, a terv elfogadásakor Vt-SZ/3 volt az övezeti besorolás
• Utcafront szélessége: 93,13 m
• Aszfaltos úton megközelíthető
• Az útról a telekre a behajtó, betonozott engedélyezett.
• Csendes, rendezett utca
• Nem messze, felnőtt és gyermek játszótér, az új pumpa kapott helyet
• A tömegközlekedés csomópontjai séta távolságra vannak
Közművek:
• 2 db 3×32 amperes villanyóra
• víz a telken, 1 db vízórával
• csatorna a telken belül
• gáz az utcában
A telek kertvárosi környezetben, mégis a városközponthoz közel található, jó közlekedési lehetőségekkel, így kiváló választás lehet nagy értékű lakóingatlan fejlesztésére vagy befektetési célra.
További információért és megtekintéssel kapcsolatban keressen bizalommal!
Az ingatlan rugalmasan megtekinthető, PER, IGÉNY és TEHER mentes!
JÖJJÖN el, NÉZZE meg, SZERESSEN bele, TEGYEN ajánlatot!
A GDN HitelCentrum, KÖTELEZETTSÉG MENTESEN és DÍJMENTESEN, versenyezteti Önért a bankok hitelajánlatait. Ismerje meg a vissza nem térítendő állami támogatásokat!
* Otthon Start hitel,
• babaváró,
• CSOK+
• hitel,
* személyi kölcsön,
• megtakarítás,
• és EGYÉB BANKI tranzakcióban segítségére lehetünk!
• Igény esetén, ÜGYVÉDI segítséget nyújtunk, MEGFIZETHETŐ áron!
Ha az ingatlannal kapcsolatban bővebb felvilágosításra lenne szüksége, hívjon bizalommal, állok rendelkezésére!
F.M.
Egyedi LEHETŐSÉG, KIVÁLÓ BEFEKTETÉS!
Eladó külterületi építési telek, engedéllyel Pécel városközpontjában – megkezdett építkezéssel!
Pécel városközpontjában eladó egy 3762 m²-es külterületi, de beépíthető építési telek, kertvárosi nyugodt környezetben, remek megközelítéssel.
A telekre érvényes, elfogadott tervdokumentáció készült, amely az E-napló rendszerében feltöltve és jóváhagyva szerepel, így az építkezés folytatható. Az építkezés már megkezdődött, a jogszabályok szerint 2027 szeptemberéig szükséges befejezni!
A jóváhagyott tervek alapján egy 787,22 m² bruttó alapterületű épület valósítható meg, amely két nagyméretű lakást tartalmaz:
• lakásonként 393,61 m² alapterület,
• lakásonként 26,04 m² erkély.
Telek jellemzői:
• Telek mérete: 3762 m²
• Övezeti besorolás: jelenleg Vi-SZ/5, a terv elfogadásakor Vt-SZ/3 volt az övezeti besorolás
• Utcafront szélessége: 93,13 m
• Aszfaltos úton megközelíthető
• Az útról a telekre a behajtó, betonozott engedélyezett.
• Csendes, rendezett utca
• Nem messze, felnőtt és gyermek játszótér, az új pumpa kapott helyet
• A tömegközlekedés csomópontjai séta távolságra vannak
Közművek:
• 2 db 3×32 amperes villanyóra
• víz a telken, 1 db vízórával
• csatorna a telken belül
• gáz az utcában
A telek kertvárosi környezetben, mégis a városközponthoz közel található, jó közlekedési lehetőségekkel, így kiváló választás lehet nagy értékű lakóingatlan fejlesztésére vagy befektetési célra.
További információért és megtekintéssel kapcsolatban keressen bizalommal!
Az ingatlan rugalmasan megtekinthető, PER, IGÉNY és TEHER mentes!
JÖJJÖN el, NÉZZE meg, SZERESSEN bele, TEGYEN ajánlatot!
A GDN HitelCentrum, KÖTELEZETTSÉG MENTESEN és DÍJMENTESEN, versenyezteti Önért a bankok hitelajánlatait. Ismerje meg a vissza nem térítendő állami támogatásokat!
* Otthon Start hitel,
• babaváró,
• CSOK+
• hitel,
* személyi kölcsön,
• megtakarítás,
• és EGYÉB BANKI tranzakcióban segítségére lehetünk!
• Igény esetén, ÜGYVÉDI segítséget nyújtunk, MEGFIZETHETŐ áron!
Ha az ingatlannal kapcsolatban bővebb felvilágosításra lenne szüksége, hívjon bizalommal, állok rendelkezésére!
F.M.
INGATLAN ADATAI
Ingatlan jellege
telek
Telek terület
3762 m²
Ingatlan állapot
kívül: jó
belül: jó
belül: jó
Fűtés
egyéb
Komfort
komfort
Közműállapot
csatorna: telken
gáz: utcában
villany: telken
víz: telken
gáz: utcában
villany: telken
víz: telken
Művelési ága
üdülő
TÉRKÉP
Pest megye, Pécel, Városközpont
KAPCSOLAT
Fenyvesi Marianna
+36 20 981 3790
m.fenyvesi@gdn-ingatlan.hu
KAPCSOLAT
IDŐPONTOT KÉREK
VISSZAHÍVÁST KÉREK
AJÁNLOM EGY ISMERŐSÖMNEK
MEGOSZTÁS
KAPCSOLATFELVÉTEL
Az üzenetet sikeresen elküldtük!
Hiba történt!
INGATLAN ADATAI
Ingatlan jellege
telek
Telek terület
3762 m²
Ingatlan állapot
kívül: jó
belül: jó
Fűtés
egyéb
Komfort
komfort
Közműállapot
csatorna: telken
gáz: utcában
villany: telken
víz: telken
Művelési ága
üdülő
HTML
PDF