GDN Ingatlanhálózat

KAPCSOLAT
Fenyvesi Marianna


+36 20 981

m.fenyvesi@

Az időpont kérés naptár ikonja
IDŐPONTOT KÉREK
A visszahívás kérés telefon ikonja egy azt körbe ölelő nyíllal
VISSZAHÍVÁST KÉREK
Ajánlom egy ismerősömnek ikon
AJÁNLOM EGY ISMERŐSÖMNEK
Facebook megosztás ikon
MEGOSZTÁS

KAPCSOLATFELVÉTEL

Küldés

Az üzenetet sikeresen elküldtük!
Hiba történt!
INGATLAN ADATAI

Ingatlan jellege

ikerház

Belső terület

101 m²

Telek terület

508 m²

Építési állapot

új

Építési mód

- nem meghatározott -

Szobák száma

3+1 félszoba

Épület szintje

1.

Ingatlan állapot

kívül: jó
belül: jó

Fűtés

cirko

Komfort

összkomfort

Közműállapot

csatorna: bekötve
gáz: bekötve
villany: bekötve
víz: bekötve

Az időpont kérés naptár ikonja
HTML
Az időpont kérés naptár ikonja
PDF
Eladó új építésű ikerház
Belső azonosító:
385226
Ingatlan azonosító:
34573_gimp

Pest megye, Pécel, Levendulás

Irányár

110 M Ft

Szobák

3+1 félszoba

Emelet

Terület

101 m²

Telek terület

508 m²
INGATLAN LEÍRÁSA
CSAK NÁLUNK!

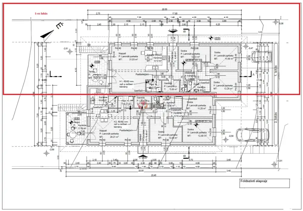
Pécel, kedvelt Levendulás lakóparkjában, eladó egy nettó 101,46 m², bruttó 110,56 m² alapterületű, 2 lakásos lakóépület 1-es lakása. Jogilag lakásnak számít.

A lakásokat, főként aszfaltos úton lehet megközelíteni.

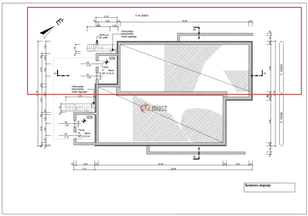
A 101,46 m²-es lakótérben 3 szoba + nappali szoba biztosít kényelmes életteret a jövőbeli lakóknak. A házhoz tartozik egy ~508 m²-es saját kert, ami tökéletes helyszín családi és baráti összejövetelekhez. A 11,28 m²-es teraszról ( alatta 9,1 m²-es tároló) gyönyörű kilátás nyílik a környező tájra.


A lakások szimmetrikus belső elrendezéssel kerültek megtervezésre, földszintes kialakítással, illetve részleges szuterén beépítéssel. A lakások az oldalkerti homlokzatok közepén lévő bejáratokon közelíthetők meg.

Rövid műszaki tartalom:

- Az épület földszinti és emeleti külső határoló falai 30 cm vastag Porotherm 30 X-Therm falazó blokkból, úgynevezett klíma téglából készülnek.

- A külső körítő falak külső oldalai 15 cm grafitos EPS (H 80) hab hőszigetelő vakolatot kapnak.

- A tetőtér hőszigetelése, fújt hőszigetelő hab, kb. 45 cm vastag kőzetgyapotnak fele meg.

- A válaszfalak 10 N+F Porotherm válaszfal lapokból falazott 10 cm vastag falszerkezetek.

- A külső nyílászárók, fehér színben gyártott műanyag 3 rétegű, hőszigetelő üvegezéssel ellátottak (U= 0,9 W/m2K) ablakok lesznek.

- A meleg víz ellátást és a fűtést gáz kondenzációs kazán biztosítja majd, padlófűtés hűleadással.

Az alternatív fűtésről és hűtésről, KLÍMA fog gondoskodni.

A tervezet áram kapacitás 1 x 32A lesz.

Most még, kb. májusig Felár ellenében H-tarifás óra kérhető!

Helységlista:

- Földszint:
- 4,48 m² belépő ,
- 7,59 m² közlekedő,
- 12,12 m² szoba I.,
- 11,68 m² szoba II. ,
- 12,25 m² szoba III.,
- 4,80 m² fürdő,
- 1,44 m² WC,
- 3,68 m² gardrób,
- 3,27 m² háztartási helység,
- 31,03 m² nappali,
- 9,12 m² konyha étkező
- -----------------
101,46 m²

Nyitott terasz 11,28 m²

A terasz alatt szuterén tároló 9,10 m² lesz.


A kert durva tereprendezéssel lesz átadva.

Műszaki tartalom:

-Hideg burkolat 6.000 Ft/m²
-Meleg burkolat 5.000 Ft/m²
-Szaniterek 200.000 Ft-ig
-Beltéri ajtók 60.000 Ft, kilinccsel együtt /db


Magasabb árú építőanyag választás esetén a különbözetet a Vevő finanszírozza.

Az ár tartalmazza még:

- H-tarifa óra előkészítését, az órát és a dobozt nem.
- Kapumozgató elektronika előkészítését,
- Riasztó előkészítését.

A berendezések kiépítése opcionálisan, plusz pénzért megrendelhetők.

A belső VÁLASZFALAK, MÉG MÓDOSÍTHATÓK!


A Kivitelező a műszaki tartalom változtatás jogát fenntartja, az előírt energetikai előírások figyelembe vételével.

Kezdő befizetés 10% foglaló.

A tervezett kezdés 2026 nyara ( a villanyóra függvényében!
A tervezett átadás 1 év (2027 ősze. villanyóra függvényében!

A Cég számos referenciával rendelkezik. Komoly érdeklődés esetén szívesen mutatunk referenciát!

Ne hagyja ki ezt a lehetőséget, legyen Ön az új ikerház tulajdonosa Pécelen!

JÖJJÖN el, NÉZZE meg, SZERESSEN bele!


A GV HitelCentrum, KÖTELEZETTSÉG MENTESEN és DÍJMENTESEN, versenyezteti Önért a bankok hitelajánlatait. Ismerje meg a vissza nem térítendő állami támogatásokat!

* Egyedi, bankfiókban nem elérhető kamat- és díjkedvezmények.
* Ingyenes Hitelképesség vizsgálat.
* Idő, energia és pénz megtakarítás.
* Teljes hivatali ügyintézés.
* Babaváró.
* CSOK+
* Hitel.
* Megtakarítás,
* és EGYÉB BANKI tranzakcióban segítségére lehetünk!

• Igény esetén, ÜGYVÉDI segítséget nyújtunk, MEGFIZETHETŐ áron!


Ha az ingatlannal kapcsolatban bővebb felvilágosításra lenne szüksége, hívjon bizalommal, állok rendelkezésére!

F.M.

INGATLAN ADATAI

Ingatlan jellege
ikerház
Belső terület
101 m²
Telek terület
508 m²
Építési állapot
új
Építési mód
- nem meghatározott -
Szobák száma
3+1 félszoba
Épület szintje
1.
Ingatlan állapot
kívül: jó
belül: jó
Fűtés
cirko
Komfort
összkomfort
Közműállapot
csatorna: bekötve
gáz: bekötve
villany: bekötve
víz: bekötve
Energetika
TÉRKÉP

Pest megye, Pécel, Levendulás

KAPCSOLAT
Fenyvesi Marianna
Fenyvesi Marianna


+36 20 981 3790

m.fenyvesi@gdn-ingatlan.hu

KAPCSOLAT
Fenyvesi Marianna

+36 20 981

m.fenyvesi@

Az időpont kérés naptár ikonja
IDŐPONTOT KÉREK
A visszahívás kérés telefon ikonja egy azt körbe ölelő nyíllal
VISSZAHÍVÁST KÉREK
Ajánlom egy ismerősömnek ikon
AJÁNLOM EGY ISMERŐSÖMNEK
Facebook megosztás ikon
MEGOSZTÁS

KAPCSOLATFELVÉTEL

Küldés

Az üzenetet sikeresen elküldtük!
Hiba történt!
INGATLAN ADATAI

Ingatlan jellege

ikerház

Belső terület

101 m²

Telek terület

508 m²

Építési állapot

új

Építési mód

- nem meghatározott -

Szobák száma

3+1 félszoba

Épület szintje

1.

Ingatlan állapot

kívül: jó
belül: jó

Fűtés

cirko

Komfort

összkomfort

Közműállapot

csatorna: bekötve
gáz: bekötve
villany: bekötve
víz: bekötve

Energetika

Az időpont kérés naptár ikonja
HTML
Az időpont kérés naptár ikonja
PDF
Pest megye - Pécel
Pest megye - Pécel
Pest megye - Pécel
Pest megye - Pécel
Pest megye - Pécel
Pest megye - Pécel
Pest megye - Pécel
Pest megye - Pécel
Pest megye - Pécel