GDN Ingatlanhálózat

KAPCSOLAT
Tőkés Levente


+36 30 362

t.levente@

Az időpont kérés naptár ikonja
IDŐPONTOT KÉREK
A visszahívás kérés telefon ikonja egy azt körbe ölelő nyíllal
VISSZAHÍVÁST KÉREK
Ajánlom egy ismerősömnek ikon
AJÁNLOM EGY ISMERŐSÖMNEK
Facebook megosztás ikon
MEGOSZTÁS

KAPCSOLATFELVÉTEL

Küldés

Az üzenetet sikeresen elküldtük!
Hiba történt!
INGATLAN ADATAI

Ingatlan jellege

téglalakás

Belső terület

34 m²

Építési állapot

új

Építési mód

- nem meghatározott -

Szobák száma

1 szoba

Emelet

1.

Épület szintje

2.

Ingatlan állapot

kívül: jó
belül: jó

Fűtés

egyéb

Komfort

összkomfort

Kilátás

utcára

Az időpont kérés naptár ikonja
HTML
Az időpont kérés naptár ikonja
PDF
Eladó új építésű téglalakás
Belső azonosító:
392825
Ingatlan azonosító:
35800_gimp

Budapest, XIII. kerület, Angyalföld

Irányár

57.8 M Ft

Szobák

1 szoba

Emelet

1

Terület

34 m²

Telek terület

866 m²
INGATLAN LEÍRÁSA
ÚJ ÉPÍTÉSŰ INGATLANOK 2027 KÖLTÖZÉSSEL!

Angyalföld:

Angyalföld Budapest XIII. kerületének legnagyobb városrésze, amely az egykori ipari zónából mára modern lakó- és irodanegyeddé alakult át. Hagyományos ipari zónák helyén ma már irodaházak, kereskedelmi egységek és a Duna-parton luxuslakások találhatók.

Az épület tettérbeépítése során törekedtünk olyan lakások kialakítására, ami a mai lakásigényeknek felel
meg, mint amerikai konyhás nappali és külön hálószoba. Változatos lakásokat alakítottunk ki úgy
méretükben, mint elrendezésükben.

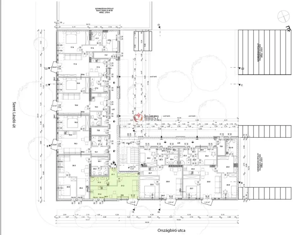
21. lakás.
Előszoba 3.84 nm.
Fürdőszoba: 4.58 nm.
Nappali étkező: 18.61 nm.
Konyha:6.79 nm.
ERKÉLY: 2 nm.


Fizetés: készültségi fokozathoz kötött fizetési ütemezés.

A további kérdésekkel és a megtekintéssel kapcsolatban, kérem keressen a megadott mobil számon.

INGATLAN ADATAI

Ingatlan jellege
téglalakás
Belső terület
34 m²
Építési állapot
új
Építési mód
- nem meghatározott -
Szobák száma
1 szoba
Emelet
1.
Épület szintje
2.
Ingatlan állapot
kívül: jó
belül: jó
Fűtés
egyéb
Komfort
összkomfort
Kilátás
utcára
Energetika
TÉRKÉP

Budapest, XIII. kerület, Angyalföld

KAPCSOLAT
Tőkés Levente
Tőkés Levente


+36 30 362 4723

t.levente@gdn-ingatlan.hu

KAPCSOLAT
Tőkés Levente

+36 30 362

t.levente@

Az időpont kérés naptár ikonja
IDŐPONTOT KÉREK
A visszahívás kérés telefon ikonja egy azt körbe ölelő nyíllal
VISSZAHÍVÁST KÉREK
Ajánlom egy ismerősömnek ikon
AJÁNLOM EGY ISMERŐSÖMNEK
Facebook megosztás ikon
MEGOSZTÁS

KAPCSOLATFELVÉTEL

Küldés

Az üzenetet sikeresen elküldtük!
Hiba történt!
INGATLAN ADATAI

Ingatlan jellege

téglalakás

Belső terület

34 m²

Építési állapot

új

Építési mód

- nem meghatározott -

Szobák száma

1 szoba

Emelet

1.

Épület szintje

2.

Lift

nincs megadva

Ingatlan állapot

kívül: jó
belül: jó

Fűtés

egyéb

Komfort

összkomfort

Kilátás

utcára

Energetika

Az időpont kérés naptár ikonja
HTML
Az időpont kérés naptár ikonja
PDF
Budapest, XIII. kerület - Angyalföld
Budapest, XIII. kerület - Angyalföld
Budapest, XIII. kerület - Angyalföld
Budapest, XIII. kerület - Angyalföld
Budapest, XIII. kerület - Angyalföld
Budapest, XIII. kerület - Angyalföld
Budapest, XIII. kerület - Angyalföld
Budapest, XIII. kerület - Angyalföld