KAPCSOLAT
IDŐPONTOT KÉREK
VISSZAHÍVÁST KÉREK
AJÁNLOM EGY ISMERŐSÖMNEK
MEGOSZTÁS
KAPCSOLATFELVÉTEL
Az üzenetet sikeresen elküldtük!
Hiba történt!
INGATLAN ADATAI
Ingatlan jellege
téglalakás
Belső terület
73 m²
Építési állapot
új
Építési mód
- nem meghatározott -
Szobák száma
4 szoba
Emelet
1.
Épület szintje
2.
Ingatlan állapot
kívül: jó
belül: jó
Fűtés
egyéb
Komfort
összkomfort
Kilátás
kertre
HTML
PDF
Eladó új építésű téglalakás
Belső azonosító:
386756
Ingatlan azonosító:
34874_gimp
Somogy megye, Kaposvár
Irányár
68.8 M Ft
Szobák
4 szoba
Emelet
1
Terület
73 m²
INGATLAN LEÍRÁSA
Kaposváron a keresett és kedvelt Csillagfény lakópark 2. ütemében, magával ragadó zöld környezetben kínálok megvételre egy új építésű társasházi lakást.
Különleges akció keretében, az önerővel (szakaszos finanszírozással) történő vásárlás esetén most a vételár 4%-a elengedésre kerül.
A festői szépségű Tókaji parkerdő ölelésében található ingatlantól a belváros gépkocsival pár perc alatt elérhető.
A megvalósuló zárt lakópark és környezete ideális feltöltődésre, pihenésre, minden generáció számára egyaránt remek életteret biztosíthat.
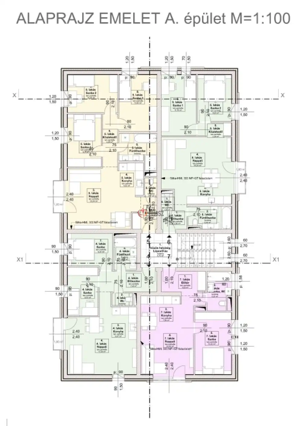
A második első ütemben épülő 11 lakásos, 3 szintes társasház minőségi anyagokból és korszerű műszaki tartalommal kerül kivitelezésre.
A lakások a jól átgondolt, ötletes tervezésnek köszönhetően élhető tereket kaptak, elosztásuk nagyszerű.
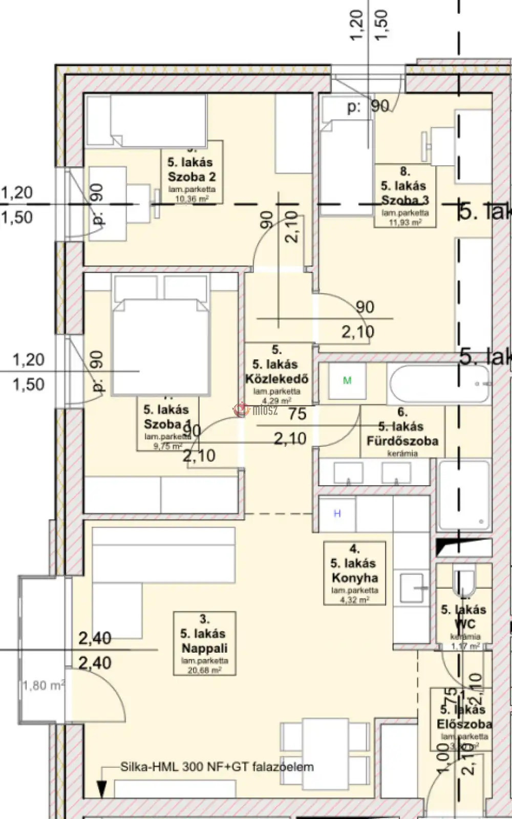
A B5 megjelölésű első emeleti lakás 72,8 m2 területű. Az amerikai konyhás nappalin túl 3 szoba, fürdőszoba, mellékhelyiség, közlekedő és előszoba kapott teret a lakásban. A közösségi térből közelíthető meg a 2 m2-es erkély.
A közel nulla hőveszteségű társasházba beépítésre kerülő nyílászárók korszerű 3 rétegű üvegezéssel lesznek ellátva, a fűtésről (és a hűtésről is) alacsony fogyasztású, magas SCOP értékű, H tarifával szerelt klímák gondoskodnak majd, így a lakások várható fenntartási költsége kifejezetten alacsony lesz.
A lakások melegvíz ellátását energiahatékony okos bojlerek biztosítják.
Az erkélyre vezető nyílászárók elektromosan vezérelhető redőnyt kapnak.
A választható beltéri nyílászárók és a burkolatok is a minőséget és a mai kornak megfelelő esztétikát képviselik.
A lakáshoz tároló (3 m2) 1.350.000.Ft, míg beállóhely 1.530.000. Ft ellenében vásárolható.
A társasház átadási határideje: 2027.első negyedéve.
További információért forduljon hozzám bizalommal!
Különleges akció keretében, az önerővel (szakaszos finanszírozással) történő vásárlás esetén most a vételár 4%-a elengedésre kerül.
A festői szépségű Tókaji parkerdő ölelésében található ingatlantól a belváros gépkocsival pár perc alatt elérhető.
A megvalósuló zárt lakópark és környezete ideális feltöltődésre, pihenésre, minden generáció számára egyaránt remek életteret biztosíthat.
A második első ütemben épülő 11 lakásos, 3 szintes társasház minőségi anyagokból és korszerű műszaki tartalommal kerül kivitelezésre.
A lakások a jól átgondolt, ötletes tervezésnek köszönhetően élhető tereket kaptak, elosztásuk nagyszerű.
A B5 megjelölésű első emeleti lakás 72,8 m2 területű. Az amerikai konyhás nappalin túl 3 szoba, fürdőszoba, mellékhelyiség, közlekedő és előszoba kapott teret a lakásban. A közösségi térből közelíthető meg a 2 m2-es erkély.
A közel nulla hőveszteségű társasházba beépítésre kerülő nyílászárók korszerű 3 rétegű üvegezéssel lesznek ellátva, a fűtésről (és a hűtésről is) alacsony fogyasztású, magas SCOP értékű, H tarifával szerelt klímák gondoskodnak majd, így a lakások várható fenntartási költsége kifejezetten alacsony lesz.
A lakások melegvíz ellátását energiahatékony okos bojlerek biztosítják.
Az erkélyre vezető nyílászárók elektromosan vezérelhető redőnyt kapnak.
A választható beltéri nyílászárók és a burkolatok is a minőséget és a mai kornak megfelelő esztétikát képviselik.
A lakáshoz tároló (3 m2) 1.350.000.Ft, míg beállóhely 1.530.000. Ft ellenében vásárolható.
A társasház átadási határideje: 2027.első negyedéve.
További információért forduljon hozzám bizalommal!
INGATLAN ADATAI
Ingatlan jellege
téglalakás
Belső terület
73 m²
Építési állapot
új
Építési mód
- nem meghatározott -
Szobák száma
4 szoba
Emelet
1.
Épület szintje
2.
Ingatlan állapot
kívül: jó
belül: jó
belül: jó
Fűtés
egyéb
Komfort
összkomfort
Kilátás
kertre
Energetika
TÉRKÉP
Somogy megye, Kaposvár
KAPCSOLAT
Zsobrák Zita
+36 30 328 5889
z.zsobrak@gdn-ingatlan.hu
KAPCSOLAT
IDŐPONTOT KÉREK
VISSZAHÍVÁST KÉREK
AJÁNLOM EGY ISMERŐSÖMNEK
MEGOSZTÁS
KAPCSOLATFELVÉTEL
Az üzenetet sikeresen elküldtük!
Hiba történt!
INGATLAN ADATAI
Ingatlan jellege
téglalakás
Belső terület
73 m²
Építési állapot
új
Építési mód
- nem meghatározott -
Szobák száma
4 szoba
Emelet
1.
Épület szintje
2.
Lift
nincs megadva
Ingatlan állapot
kívül: jó
belül: jó
Fűtés
egyéb
Komfort
összkomfort
Kilátás
kertre
Energetika
HTML
PDF