KAPCSOLAT
IDŐPONTOT KÉREK
VISSZAHÍVÁST KÉREK
AJÁNLOM EGY ISMERŐSÖMNEK
MEGOSZTÁS
KAPCSOLATFELVÉTEL
Az üzenetet sikeresen elküldtük!
Hiba történt!
INGATLAN ADATAI
Ingatlan jellege
téglalakás
Belső terület
80 m²
Építési állapot
új
Építési mód
- nem meghatározott -
Szobák száma
3 szoba
Emelet
1.
Épület szintje
3.
Ingatlan állapot
kívül: jó
belül: jó
Fűtés
cirko
Komfort
összkomfort
Kilátás
kertre
HTML
PDF
Eladó új építésű téglalakás
Belső azonosító:
387805
Ingatlan azonosító:
35023_gimp
Somogy megye, Kaposvár
Irányár
79.99 M Ft
Szobák
3 szoba
Emelet
1
Terület
80 m²
INGATLAN LEÍRÁSA
Befektetők, otthonkeresők figyelem, hiányt pótló építkezés Kaposvár belvárosában!
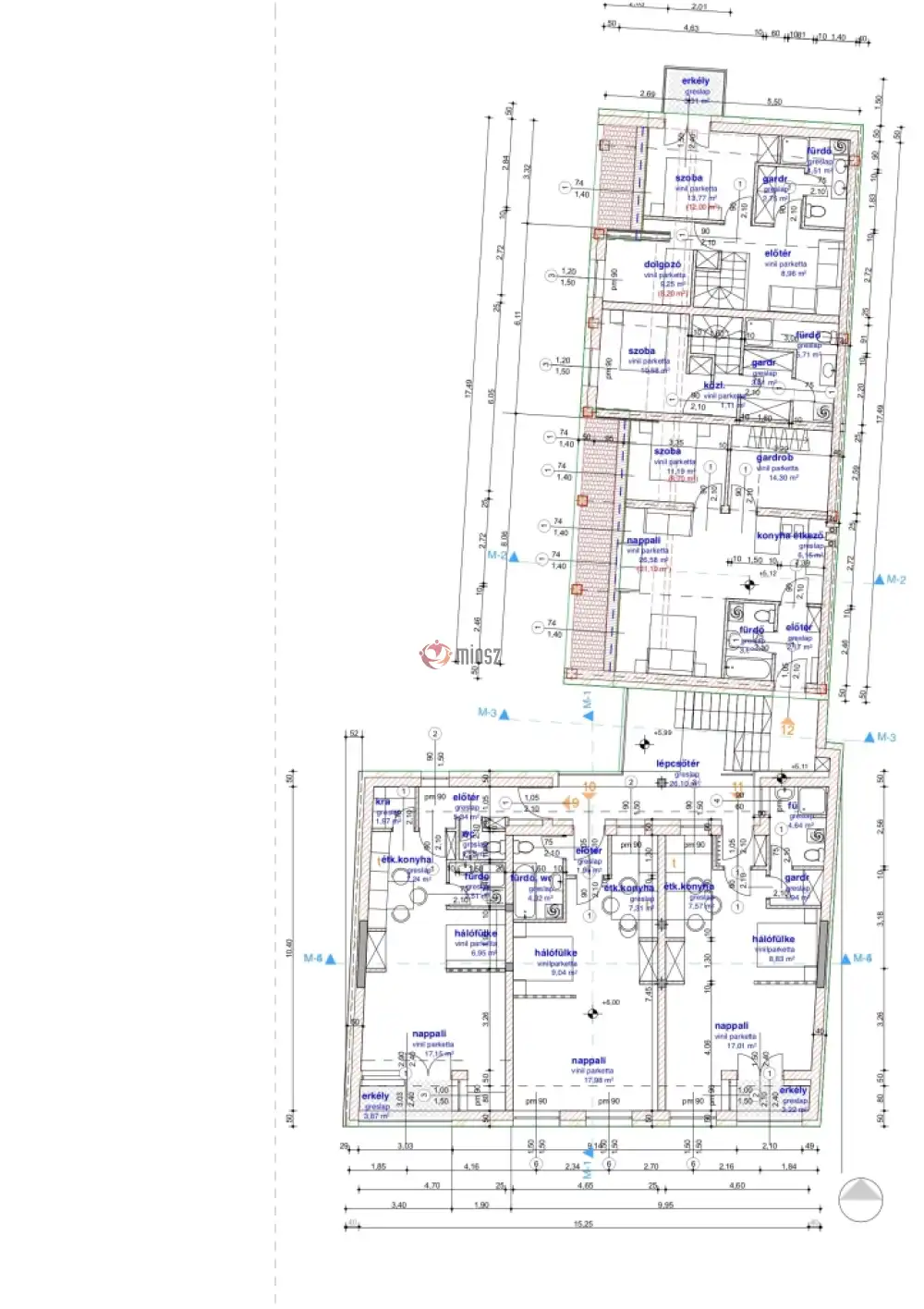
Kaposváron megújuló környezetben, a Fő utca 91. szám alatt megvalósuló 15 lakásos társasház a mai kor igényeire és elvárásaira szabva a legkorszerűbb energetikával, kizárólag minőségi anyagok felhasználásával épül -megújuló energiaforrást is alkalmazva- egy hangulatos, fákkal borított telekterületen, kiváló elhelyezkedés mellett.
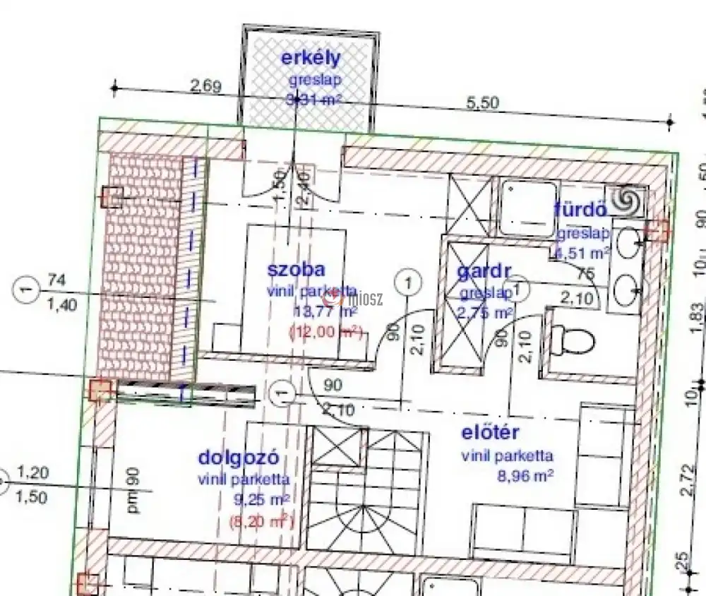
A projekt 5.-ös számú, első emeleti lakása 79,86 m2 lakóterületű, belső kétszintes kialakítású.
A jól átgondolt terveknek köszönhetően a lakás elosztása kiváló, az életterek kialakításánál a funkcionalitás dominált, kényelmes teret biztosítva leendő lakóinak.
A lakásban az alsó szinten egy tágas közösségi tér (nappali-konyha-étkező), előtér és mellékhelyiség kerül kialakításra, míg a felső szinten két szoba, gardróbszoba és fürdőszoba kap teret. Igény esetén a lakásban egy további szoba is kialakítható. A lakás nappalijából egy méretes 17 m2-es erkély, míg a felső szinten az egyik szobából 3 m2-es erkély nyílik a zölddel borított udvarra.
A lakások -a burkolatok és beltéri nyílászárók szabad választása mellett- kulcsrakész állapotban kerülnek átadásra.
A társasház zárt, elektromos kapubeállóval ellátott udvarán kialakított felszíni beállóhely 2.500.000. Ft-ért, míg "garázs" és hozzá tartozó dupla méretű tároló helyiség 8.000.000.-Ft-ért vásárolható a lakásokhoz.
A társasház méretes zöld udvarán lehetőség nyílik egy fantasztikus közösségi tér kialakítására is, úgy mint játszótér, kondipark, sütögető, pihenő liget.
Az ingatlan beruházója és kivitelezője kimondottan megbízható, több évtizede az építőipari piacon tevékenykedő, kiváló referenciákkal bíró cég (nem pedig egy adott projekt kedvéért létrehozott gazdasági társaság), aki így az esetleges garanciális javításokért is jótáll.
A lakások várható átadása kulcsrakész állapotban 2027. április 30.
Az ingatlantól pár perces sétával érhetőek el boltok, közoktatási és köznevelési intézmények, a magával ragadó Vaszary (Okos) park, a kórház stb...
Egyedülálló lehetőség Kaposvár belvárosában, remek elhelyezkedéssel, kiváló infrastruktúrával, mely befektetésként, és otthonteremtési célzattal is kitűnő választás!
További információért kérem forduljon hozzám bizalommal!
Kaposváron megújuló környezetben, a Fő utca 91. szám alatt megvalósuló 15 lakásos társasház a mai kor igényeire és elvárásaira szabva a legkorszerűbb energetikával, kizárólag minőségi anyagok felhasználásával épül -megújuló energiaforrást is alkalmazva- egy hangulatos, fákkal borított telekterületen, kiváló elhelyezkedés mellett.
A projekt 5.-ös számú, első emeleti lakása 79,86 m2 lakóterületű, belső kétszintes kialakítású.
A jól átgondolt terveknek köszönhetően a lakás elosztása kiváló, az életterek kialakításánál a funkcionalitás dominált, kényelmes teret biztosítva leendő lakóinak.
A lakásban az alsó szinten egy tágas közösségi tér (nappali-konyha-étkező), előtér és mellékhelyiség kerül kialakításra, míg a felső szinten két szoba, gardróbszoba és fürdőszoba kap teret. Igény esetén a lakásban egy további szoba is kialakítható. A lakás nappalijából egy méretes 17 m2-es erkély, míg a felső szinten az egyik szobából 3 m2-es erkély nyílik a zölddel borított udvarra.
A lakások -a burkolatok és beltéri nyílászárók szabad választása mellett- kulcsrakész állapotban kerülnek átadásra.
A társasház zárt, elektromos kapubeállóval ellátott udvarán kialakított felszíni beállóhely 2.500.000. Ft-ért, míg "garázs" és hozzá tartozó dupla méretű tároló helyiség 8.000.000.-Ft-ért vásárolható a lakásokhoz.
A társasház méretes zöld udvarán lehetőség nyílik egy fantasztikus közösségi tér kialakítására is, úgy mint játszótér, kondipark, sütögető, pihenő liget.
Az ingatlan beruházója és kivitelezője kimondottan megbízható, több évtizede az építőipari piacon tevékenykedő, kiváló referenciákkal bíró cég (nem pedig egy adott projekt kedvéért létrehozott gazdasági társaság), aki így az esetleges garanciális javításokért is jótáll.
A lakások várható átadása kulcsrakész állapotban 2027. április 30.
Az ingatlantól pár perces sétával érhetőek el boltok, közoktatási és köznevelési intézmények, a magával ragadó Vaszary (Okos) park, a kórház stb...
Egyedülálló lehetőség Kaposvár belvárosában, remek elhelyezkedéssel, kiváló infrastruktúrával, mely befektetésként, és otthonteremtési célzattal is kitűnő választás!
További információért kérem forduljon hozzám bizalommal!
INGATLAN ADATAI
Ingatlan jellege
téglalakás
Belső terület
80 m²
Építési állapot
új
Építési mód
- nem meghatározott -
Szobák száma
3 szoba
Emelet
1.
Épület szintje
3.
Ingatlan állapot
kívül: jó
belül: jó
belül: jó
Fűtés
cirko
Komfort
összkomfort
Kilátás
kertre
Energetika
TÉRKÉP
Somogy megye, Kaposvár
KAPCSOLAT
Zsobrák Zita
+36 30 328 5889
z.zsobrak@gdn-ingatlan.hu
KAPCSOLAT
IDŐPONTOT KÉREK
VISSZAHÍVÁST KÉREK
AJÁNLOM EGY ISMERŐSÖMNEK
MEGOSZTÁS
KAPCSOLATFELVÉTEL
Az üzenetet sikeresen elküldtük!
Hiba történt!
INGATLAN ADATAI
Ingatlan jellege
téglalakás
Belső terület
80 m²
Építési állapot
új
Építési mód
- nem meghatározott -
Szobák száma
3 szoba
Emelet
1.
Épület szintje
3.
Lift
nincs megadva
Ingatlan állapot
kívül: jó
belül: jó
Fűtés
cirko
Komfort
összkomfort
Kilátás
kertre
Energetika
HTML
PDF