GDN Ingatlanhálózat

KAPCSOLAT
Gombos Ernő


+36 30 936

g.erno@

Az időpont kérés naptár ikonja
IDŐPONTOT KÉREK
A visszahívás kérés telefon ikonja egy azt körbe ölelő nyíllal
VISSZAHÍVÁST KÉREK
Ajánlom egy ismerősömnek ikon
AJÁNLOM EGY ISMERŐSÖMNEK
Facebook megosztás ikon
MEGOSZTÁS

KAPCSOLATFELVÉTEL

Küldés

Az üzenetet sikeresen elküldtük!
Hiba történt!
INGATLAN ADATAI

Ingatlan jellege

téglalakás

Belső terület

60 m²

Építési állapot

új

Építési mód

- nem meghatározott -

Szobák száma

3 szoba

Bútorozottság

nem

Emelet

2.

Épület szintje

2.

Ingatlan állapot

kívül: jó
belül: jó

Fűtés

központi egyedi méréssel

Komfort

összkomfort

Kilátás

utcára

Az időpont kérés naptár ikonja
HTML
Az időpont kérés naptár ikonja
PDF
Kiadó új építésű téglalakás
Belső azonosító:
391609
Ingatlan azonosító:
35582_gimp

Vas megye, Szombathely, Minerva lakótelep

Bérleti díj

240 E Ft/hó

Szobák

3 szoba

Emelet

2

Terület

60 m²
INGATLAN LEÍRÁSA
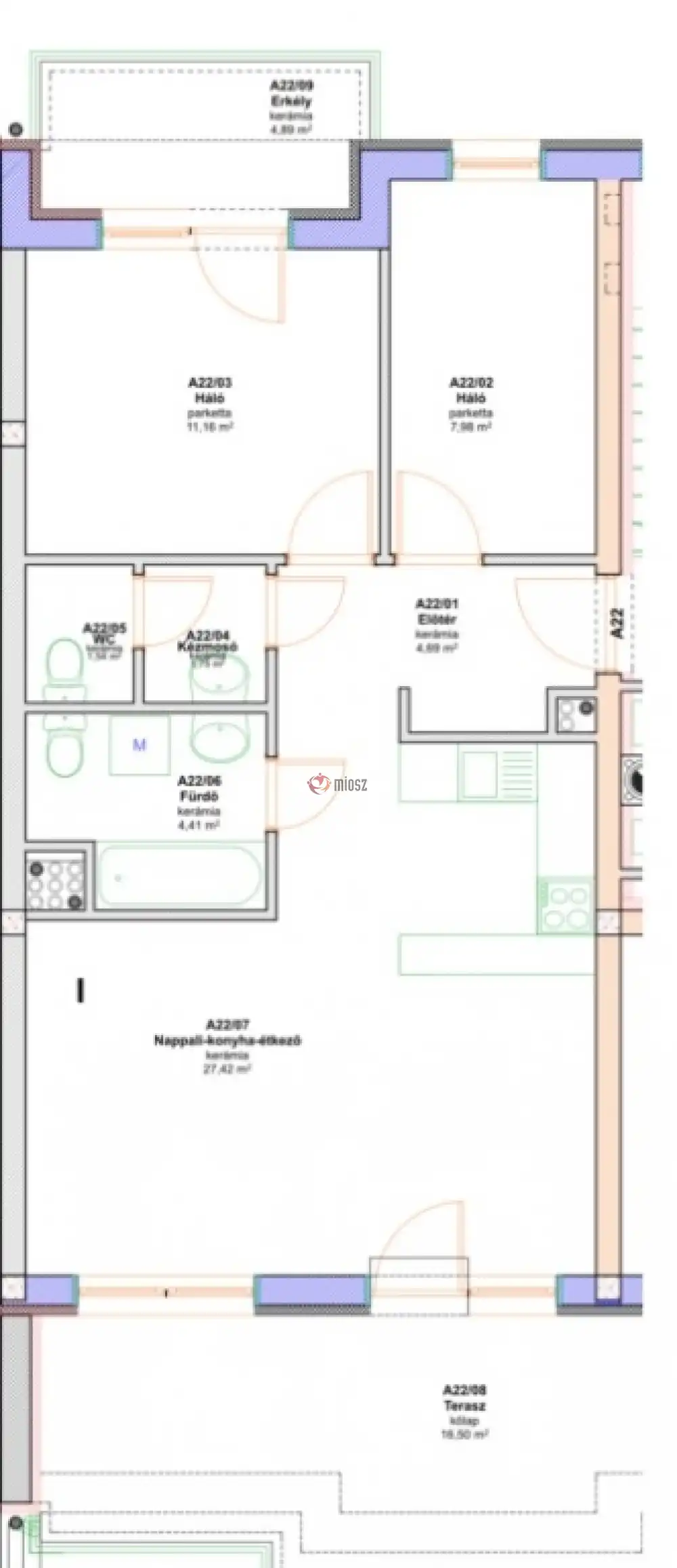
Szombathelyen a Minerva Lakóparkban új építésű társasházban hosszú távra kiadó, modern kialakítású, nyugati-keleti fekvésű második emeleti bútorozatlan légkondicionált lakás, melyhez saját gépkocsi beálló tartozik.
Az ingatlan gépesített konyhával (hűtőszekrény, mosógatógép, indukciós főzőlap, villanytűzhely, páraelszívó), két hálószobával + nappalival + 2 db nagy terasszal rendelkezik, összesen 70 m2.

Kisállat és dohányzás nem megengedett.

Műszaki tartalom:
Falazata tégla, 15 cm-es külső hőszigeteléssel.
Fokozott hőszigetelésű, három rétegű műanyag ablakok.
Bejárati ajtó 5 ponton záródó biztonsági zárral.
A fűtés egyedi hőmennyiség szabályozóval, falra szerelt radiátorokkal. A fürdőszobában törölközőszárítós radiátor van. A lakás légkondicionált, hűtő-fűtő klímával, rendelkezik.

Ár: 240 ezer Ft + rezsi, a bérleti díj tartalmazza a gépkocsi beállót is, a lakás energia és költség hatékony ingatlan.

Kizárólag hosszútávra kiadó az ingatlan. 2 havi kaució, első havi bérleti díj kifizetésével március 1-től költözhető.

INGATLAN ADATAI

Ingatlan jellege
téglalakás
Belső terület
60 m²
Építési állapot
új
Építési mód
- nem meghatározott -
Szobák száma
3 szoba
Bútorozottság
nem
Emelet
2.
Épület szintje
2.
Ingatlan állapot
kívül: jó
belül: jó
Fűtés
központi egyedi méréssel
Komfort
összkomfort
Kilátás
utcára
Energetika
TÉRKÉP

Vas megye, Szombathely, Minerva lakótelep

KAPCSOLAT
Gombos Ernő
Gombos Ernő


+36 30 936 5528

g.erno@gdn-ingatlan.hu

KAPCSOLAT
Gombos Ernő

+36 30 936

g.erno@

Az időpont kérés naptár ikonja
IDŐPONTOT KÉREK
A visszahívás kérés telefon ikonja egy azt körbe ölelő nyíllal
VISSZAHÍVÁST KÉREK
Ajánlom egy ismerősömnek ikon
AJÁNLOM EGY ISMERŐSÖMNEK
Facebook megosztás ikon
MEGOSZTÁS

KAPCSOLATFELVÉTEL

Küldés

Az üzenetet sikeresen elküldtük!
Hiba történt!
INGATLAN ADATAI

Ingatlan jellege

téglalakás

Belső terület

60 m²

Építési állapot

új

Építési mód

- nem meghatározott -

Szobák száma

3 szoba

Bútorozottság

nem

Emelet

2.

Épület szintje

2.

Lift

nincs megadva

Ingatlan állapot

kívül: jó
belül: jó

Fűtés

központi egyedi méréssel

Komfort

összkomfort

Kilátás

utcára

Energetika

Az időpont kérés naptár ikonja
HTML
Az időpont kérés naptár ikonja
PDF
Vas megye - Szombathely
Vas megye - Szombathely
Vas megye - Szombathely
Vas megye - Szombathely
Vas megye - Szombathely
Vas megye - Szombathely
Vas megye - Szombathely
Vas megye - Szombathely
Vas megye - Szombathely
Vas megye - Szombathely
Vas megye - Szombathely